Search results

  1. I

    Whole host of pitched to flat roof questions

    LOL But it was said with a positive attitude that time and no insults. :wink:
  2. I

    Whole host of pitched to flat roof questions

    Thank you for your constructive post and suggestion.
  3. I

    Whole host of pitched to flat roof questions

    I'm sure you're trying to help despite the insults. My architect has suggested and designed for lead lined outlets through the parapet, level with the box gutter as in his drawing in my first post. we have the same sort of arrangement on a larger area of flat roof which can just about seen on a...
  4. I

    Whole host of pitched to flat roof questions

    Thanks for your input but to be fair the design was always going to be a compromise as the upper floor windows are quite low and I didn't want them too obscured with the new lantern on the roof. That's why the flat roof has been set below the level the ridge of the pitched roof section. Not...
  5. I

    Whole host of pitched to flat roof questions

    Thanks once again Oldun, any reason I couldn't use plastic gutters and mount the brackets on the front of the tails? Mono tiles it is then. Re the lead outlets, just been having a look online, any experience of flat roof drainage outlets...
  6. I

    Whole host of pitched to flat roof questions

    Thanks for your comments Olden, all taken on board. I didn't post that diagram first as I had a rough idea the structure was ok and my questions referred to the roof covering and insulation. Celotex calculator checked and on the left hand heading under construction it says TB4000 but looking...
  7. I

    Whole host of pitched to flat roof questions

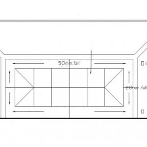
    Hi thanks for the replies I think. Oldun, not sure what you mean about a skyhook but that upper beam is really the other side of a cranked steel beam which roughly on that drawing goes from where it says 50X100mm then down to a steel post in line with the rafters. To the left of the 50x100mm it...
  8. Untitled

    Untitled

  9. I

    Whole host of pitched to flat roof questions

    Hi I’m in the process of building an orangery on the back of our house which will have an outer pitched roof with a flat top which will then have a glass lantern on top. I’m hoping someone will be able to point me in the right direction and answer a few questions about the roof makeup...
  10. Untitled

    Untitled

  11. Untitled

    Untitled

  12. I

    C16 vs oak rafters?

    Thanks Aron that's what I wanted to hear.
  13. I

    C16 vs oak rafters?

    Just found this in building regulations for fire safety. Anyone know if this would apply to a conservatory roof? "Exclusions from the provisions for elements of structure 4.4 The following are excluded from the definition of element of structure for the purposes of these provisions...
  14. I

    C16 vs oak rafters?

    Hi I have been told that the rafters are already oversized for the application they are 50 x 150 at 400m centres at 30 deg for just over a 1M span. Would they need to be over sized further? Also if oak is even slightly stronger would that not mean that I could at least keep the section sizes...
  15. I

    C16 vs oak rafters?

    Hi, I'm the process of building a new conservatory and C16 rafters have been specified but I would like to consider having exposed rafter tails, in which case I thought of using oak rafters instead. I would keep to the same size of rafters but if I do does the oak have to be graded and if so...
  16. I

    Soakaway to BRE digest 365?

    Thanks Mr O. Should be sorted now in a way I didn't think about :lol:
  17. I

    Soakaway to BRE digest 365?

    Hi Mr Oldun, the 34m2 is the total new roof area on a single story orangery extension at the rear of our house and it will have just one downpipe. Just a little bit more info, the main roof of the house at the back has 2 downpipes, one at each endish which already go into 2 soakaways. The...
  18. I

    Soakaway to BRE digest 365?

    Lol tell me about it, sites of less than 100m2 only need a test hole of 300mmx 300mm but I still need to do maths. Most online examples seem to use a tool called Tedds?
  19. I

    Soakaway to BRE digest 365?

    I'll try it with him but when I mentioned the soakaway on his first visit I asked how he wanted it done and he said he wanted it calculated to BRE 365. I also need to keep him on side as I have a few other areas coming up that I will need some goodwill shall we say.:? Just in case I do...
  20. I

    Soakaway to BRE digest 365?

    Thanks again, but on the planning portal the approved doc H talks about small soakaways serving 25m2 or less and then says for larger soakaways ie 34m2 refer to paragraph 3.30 which says should be designed to BS EN 752-4 or BRE digest 356 which is what the BCO wants it to :(
Back
Top