Search results

  1. L

    New T&G Pine Floorboards...what to look for?

    Thanks for the replies guys. A quick update. Both my local timber yards can supply redwood t&g floorboards...but both of them say the same thing, ie, they do not recommend as a final floor finish due to movement problems that might occur with moisture/swelling/shrinkage etc. Which leaves me in a...
  2. L

    New T&G Pine Floorboards...what to look for?

    Hi all. I've decided to fit t&g floorboards to my suspended joist ground floor. I'm just at the stage of improving ventilation...then will be insulating between joists with Celotex 75mm. Having read a little about available t&g floorboards, I've ended up a bit confused. The floorboards will be...
  3. L

    Re-laying floorboards over Ply Sub floor?

    Thanks for reply Noseall. Unfortunately not planning to use T&G floorboards at the moment, as I have 1 room of square edge boards available...and T&G would be difficult to get up if nailed or screwed down on the plywood base. I'm still considering using T&G ply for the sub floor tho..the most...
  4. L

    Re-laying floorboards over Ply Sub floor?

    I am just about to start fitting new joists to a suspended ground floor in a very, very drafty Victorian terrace. I've spent some time clearing out the under floor of debris earth and crap and am improving the front to back ventilation of the ground floor...so it's going to get even draftier! 2...
  5. L

    Cutting Bricks out internal central wall & Air bricks?

    Thanks Corp'ral...When you mention honeycomb to central walls..I suppose thats what I am thinking of doing now. I wasn't thinking of putting air bricks there...just leaving the brick width gap...aka, honeycomb. Is this ok re structure above? Unfortunately I'm kinda stuck with the existing...
  6. L

    Cutting Bricks out internal central wall & Air bricks?

    Hi all. Had some good advice recently about replacing my suspended timber floors. I'm now at the stage of looking to get max ventilation to the 2 ground floor rooms. First question relates to the staircase walls that separate the front and back room (typical victorian terrace)see...
  7. Untitled

    Untitled

  8. ventilation

    ventilation

  9. L

    Suspended timber floor. Wall Plates and Over-site Concrete

    Ah. I see. I don't need to type the " symbols! Got it. Thanks Richard.
  10. L

    Suspended timber floor. Wall Plates and Over-site Concrete

    ["quote"]Quote economically and only when necessary ;-)["/quote"] I tried it...as above Richard, but it doesn't work...What have I done wrong please?
  11. L

    Suspended timber floor. Wall Plates and Over-site Concrete

    Thanks for your advice Maltaron, most useful. See my reply to Ree about the DPM behind the wall plates! I will check and see if my Coach screws, not bolts, are stainless or not and maybe change them. I also have some of those expanding bolts that I might try to fit as a bit more insurance...
  12. L

    Suspended timber floor. Wall Plates and Over-site Concrete

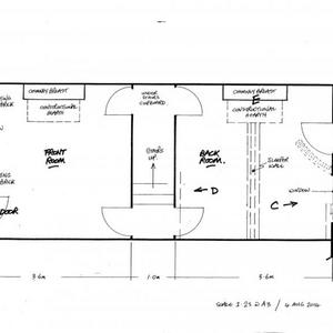
    Good idea...do it sometimes in my job (I'm a designer) Pics uploaded. Air flow is minimal to non existent at the moment, exacerbated further by only one air brick to the rear. If you refer to my plan you can see my proposed new air brick, maybe with some concertina duct tube to get air to that...
  13. Untitled

    Untitled

    CONSTRUCTIONAL HEARTH
  14. Untitled

    Untitled

    VIEW C TPLATE DPM
  15. Untitled

    Untitled

    SLEEPER WALL
  16. Untitled

    Untitled

    VIEW D DETAIL
  17. Untitled

    Untitled

    VIEW D
  18. Untitled

    Untitled

    VIEW C DETAIL
  19. Untitled

    Untitled

    VIEW C DETAIL
  20. Untitled

    Untitled

    VIEW C
Back
Top