Search results

  1. Untitled

    Untitled

  2. rear_ex

    rear_ex

  3. I

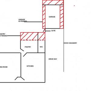
    Garage Plans ? Can I do this and extension questions

    Hi Guys I have a few questions - Please! I currently have a single garage (single story) which I would like to make bigger; 1- build against the boundry 2 -build it wider and bigger 3 -build it two storeys I only want it two story so I can have my own GYM area, I have a treadmill...
  4. I

    damp disaster!

    oh well.... since your not taking anyone advice ... i hope you get smelly mould as well as damp :mrgreen:
  5. I

    damp disaster!

    Iam gona have to agree with Freddy, I generally dont get into this arguments with neighbours.. I just do whatever its needed to fix the problem. If his drive is wide enough, maybe as a fix or somwthing dig all the drive up near your house and have a brick layer make a small wall or...
  6. I

    Concentration camps

    @ Joe thanks for website. I am going to go read.
  7. I

    Concentration camps

    Joe has some very valid points and so do other members.... If you ask somone off the street who died in the Holocaust, they will mention the one race and one religion. Do people think their is an issue of educating the people to stop listening to the propaganda projected on the TV and the...
  8. I

    Concentration camps

    Just want to add my 2p, I am sure the Holocaust happened, But what I dont agree with is the numbers they claim. What I also know is, Jews were not the only race/religion to suffer. question is .... why are we forgetting the others, and highlighting just one?
  9. I

    Damp ? Whats happing to this house?

    I understand what your saying, but how do I know where DPC is ?
  10. I

    Damp ? Whats happing to this house?

    one of these ? http://www.ebay.co.uk/itm/Chimney-Pot-Rain-Cowl-for-Flue-/110486415665?pt=UK_Home_Garden_Other_Fireplaces&hash=item19b980e931
  11. I

    Damp ? Whats happing to this house?

    I dont have access to the external side of the chimney. but will get the following things done, Chimney capped with a cowling top, more air vents and may even open the the chimney and have some storage space under it. Yes the house is an older property end terrece. I assume to check...
  12. I

    Damp ? Whats happing to this house?

    Hi, Now what your saying all adds up, No cavity wall ties, one thing I noticed the joists under the hallway were wet and at somepoint some have been replaced and the ends have been wrapped with plastic felt looking material. Who ever has done the work, knew they had a condensation...
  13. I

    Damp ? Whats happing to this house?

    The garage is going to be knocked down due to the fact its crumbling. Once thats gone - and the air circulates around, (may even add some airbricks for more venltation)
  14. I

    Damp ? Whats happing to this house?

    The damp patches are around 0.6 meters in height. The internal wall has a storage cellar underneath. The wall looks dry to me. I cant see any crystal or salt like deposits. The external hallway damp is happeing because a garage is next door with a gap, I am sure the water is running down...
  15. I

    Damp ? Whats happing to this house?

    SORRY - alittle slow :lol:
  16. I

    Damp ? Whats happing to this house?

    HAVE A LOOK
  17. Untitled

    Untitled

  18. Untitled

    Untitled

  19. Untitled

    Untitled

Back
Top