Hello,
I am planning an extension and need to consider drainage.
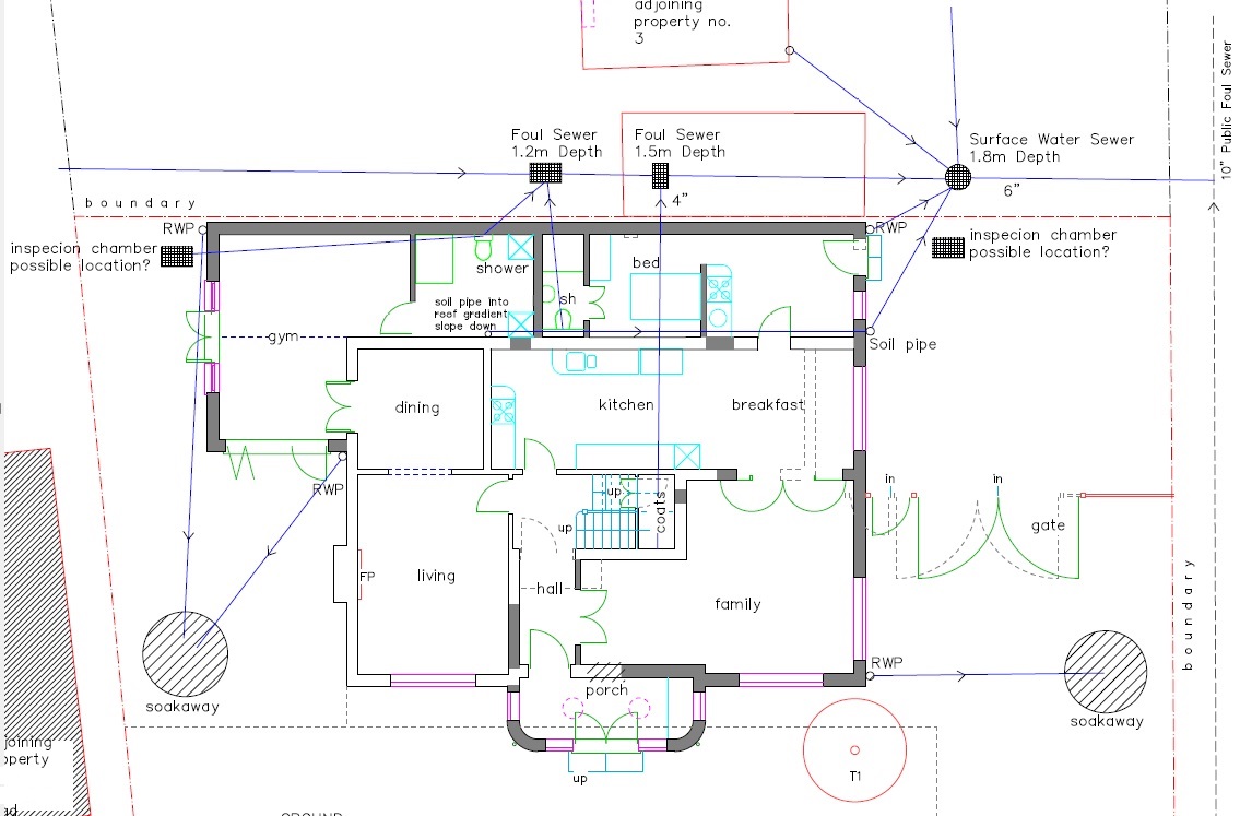
I have drawn an existing foul and surface water layout for the site which is attached. I got information from old library records and flush tests to construct this. There is no manhole or inspection chamber on my site. My drainage connects into a public lateral drain which runs through my neighbours garden, garage, front garden which connects to the foul sewer running underneath the highway. I believe it is a combined foul / surface water drain.
I also attached a drainage layout after the extension has been built which includes soakaways and the two possible locations of an inspection chamber (either at front or rear of house). I think the inspection chamber should go near outside the gym area for rodding as it follows the flow, but I'm not completely sure.
I would also like to run the surface water from all the rainwater pipes into the combined sewer, but understand it may be problematic and soakaways are probably easier as shown.
Any advice on layout / design would be greatly appreciated.
I am also getting a build over agreement from thames water when the design has been finalized.
Thanks.
I am planning an extension and need to consider drainage.
I have drawn an existing foul and surface water layout for the site which is attached. I got information from old library records and flush tests to construct this. There is no manhole or inspection chamber on my site. My drainage connects into a public lateral drain which runs through my neighbours garden, garage, front garden which connects to the foul sewer running underneath the highway. I believe it is a combined foul / surface water drain.
I also attached a drainage layout after the extension has been built which includes soakaways and the two possible locations of an inspection chamber (either at front or rear of house). I think the inspection chamber should go near outside the gym area for rodding as it follows the flow, but I'm not completely sure.
I would also like to run the surface water from all the rainwater pipes into the combined sewer, but understand it may be problematic and soakaways are probably easier as shown.
Any advice on layout / design would be greatly appreciated.
I am also getting a build over agreement from thames water when the design has been finalized.
Thanks.
