- Joined
- 26 Dec 2017
- Messages
- 19
- Reaction score
- 0
- Country

Hello
I am looking to have a flat roof extension.
I wanted to install a roof lantern.
I have been told that I can just double up or triple up the joists around the roof lantern.
I was looking at two potential roof lantern sizes.
Option 1 – 2000mm by 27000mm
Option 2 – 1200mm by 2700mm
The joists would span 4.3 m unsupported. And are made up of
47 x 195mm grade C24 joists at 400 ctrs.
Someone told me that I would need steels for larger roof lanterns. I was not sure if the above would be considered large and therefore require structural steels.
Any views on this. Can I just increase the thickness of the joists if needs be to provide stronger support?
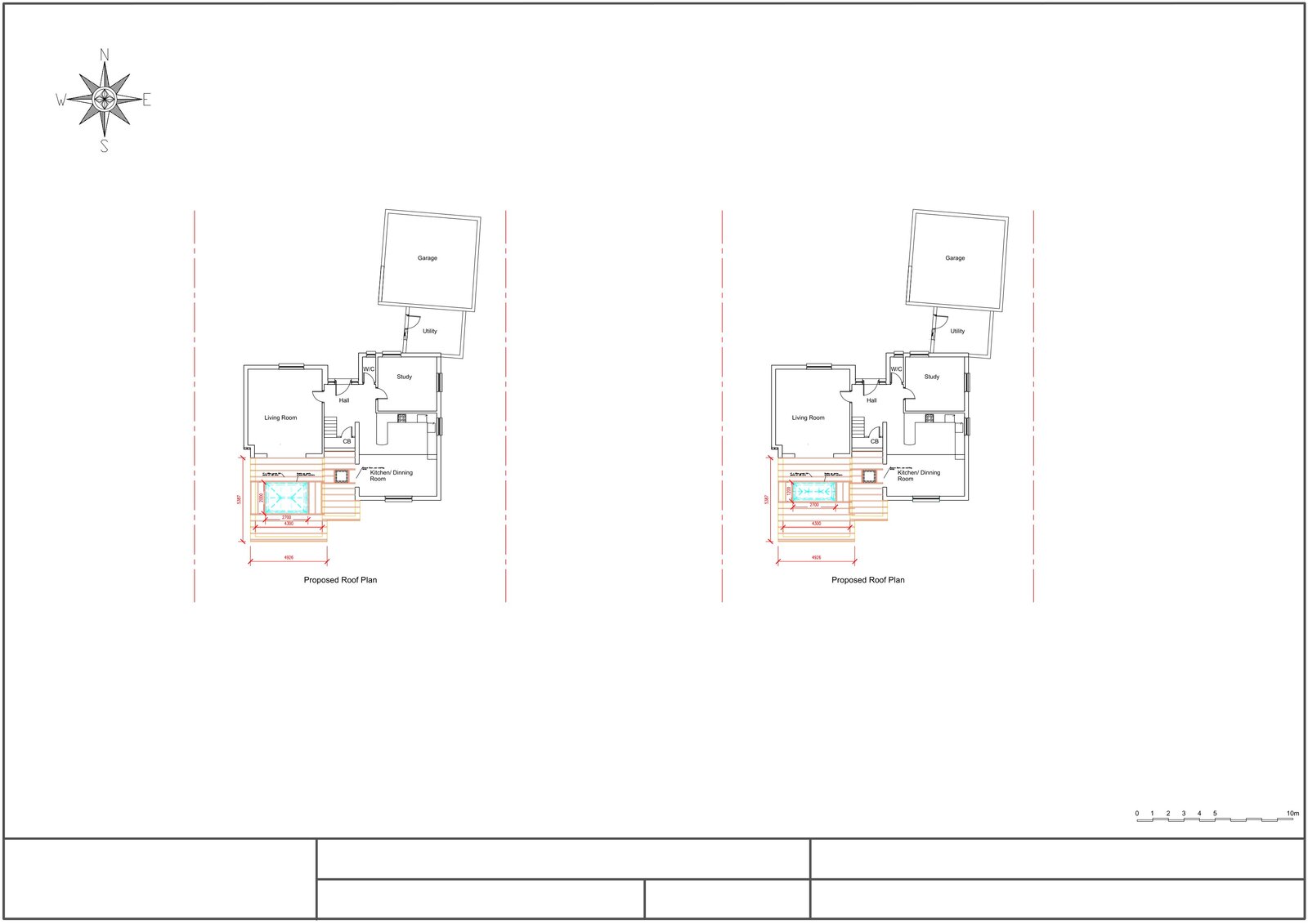
please see attached plans
I am looking to have a flat roof extension.
I wanted to install a roof lantern.
I have been told that I can just double up or triple up the joists around the roof lantern.
I was looking at two potential roof lantern sizes.
Option 1 – 2000mm by 27000mm
Option 2 – 1200mm by 2700mm
The joists would span 4.3 m unsupported. And are made up of
47 x 195mm grade C24 joists at 400 ctrs.
Someone told me that I would need steels for larger roof lanterns. I was not sure if the above would be considered large and therefore require structural steels.
Any views on this. Can I just increase the thickness of the joists if needs be to provide stronger support?
please see attached plans