right guys, this job is going ahead but ive not heard back from the likes of nu-heat regarding plans/cost. Problem is customer wants a price as shes waiting for kitchen to be fitted and floor to be laid so all this underfloor heating needs to be done by then.
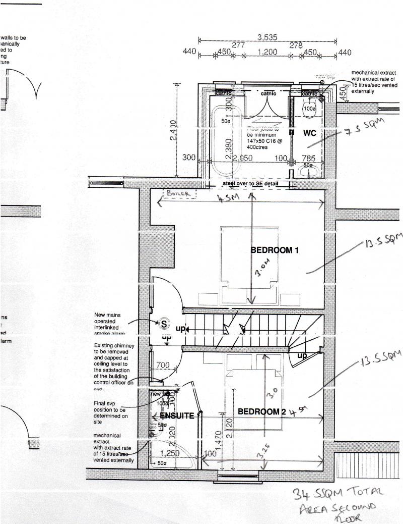
ill upload some plans of the house so you get a better idea whats going on. Customer now wants both the ground foor and the 1st floor fitted with underfloor heating. no rads apart from a towel rad in each of the bathrooms. Im guessing im goind to need 2 x 3 port manifolds with pump and mixer as theres 3 rooms on each floor. so im thinking it would be good to give each room its own circuit. ground floor is approx 26sqm in total. 1st floor is 34sqm
what im unsure how to do is the layout of the piping in the floor? can anyone edit the plans i will try to upload to show me how its done. Im a complete newb to this so any help really appreciated. Also what size boiler would be needed to run this? not sure how many watts in total the heating system will be? and what controls should be put on the system?
sorry for all the questions but if yer dont ask, yer dont get. hopefully you nice guys will help me out
just to note, ground floor will be tiled, 1st floor will be carpeted and tiles in bathrooms. 1st floor has joists running from to back at 350mm centres as does the kitchen on ground floor. The louge and dining room will be concreted to bring the floor level up to the level of the kitchen floor. Can the pipes be laid in concrete or does it have to be screed?
ill upload some plans of the house so you get a better idea whats going on. Customer now wants both the ground foor and the 1st floor fitted with underfloor heating. no rads apart from a towel rad in each of the bathrooms. Im guessing im goind to need 2 x 3 port manifolds with pump and mixer as theres 3 rooms on each floor. so im thinking it would be good to give each room its own circuit. ground floor is approx 26sqm in total. 1st floor is 34sqm
what im unsure how to do is the layout of the piping in the floor? can anyone edit the plans i will try to upload to show me how its done. Im a complete newb to this so any help really appreciated. Also what size boiler would be needed to run this? not sure how many watts in total the heating system will be? and what controls should be put on the system?
sorry for all the questions but if yer dont ask, yer dont get. hopefully you nice guys will help me out
just to note, ground floor will be tiled, 1st floor will be carpeted and tiles in bathrooms. 1st floor has joists running from to back at 350mm centres as does the kitchen on ground floor. The louge and dining room will be concreted to bring the floor level up to the level of the kitchen floor. Can the pipes be laid in concrete or does it have to be screed?
