Search results

  1. Untitled

    Untitled

  2. L

    Fitting CH Filter

    I am looking at fitting a CH filter to my open Vented CH system. However I am lacking with space as the boiler is located in a kitchen cupboard and space/access above the boiler is limited. I am therefore looking to fit the filter in my airing cupboard. There is a horizontal section of pipe...
  3. Untitled

    Untitled

  4. Untitled

    Untitled

  5. L

    Trappex centramag Filter

    Johnny plumber thanks for the reply. No one here seems to comment on the Centramag, so I am undecided. The have read the feedback on the Ukplumbersforum, however a fair bit is from the person who made the product. The problem I have is fitting will be in a tight space which rules out...
  6. L

    Trappex centramag Filter

    I was looking into Central Heating Filters. The main filters was interested in were: 1) Magnaclean Pro 2 2) Spirotech MB3 3) TF1 I think from the above 3 I would probably go for the Magnaclean, due to limited space (TF1) and ability to clean (MB3). However I came across the Centramag, but...
  7. L

    Heat Loss Calculations

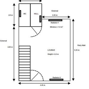
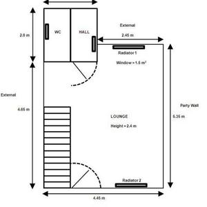
    Thanks for all your comments about checking balance. I have order myself a Contact K thermometer as I also want to check out our oven temperature as it seems a bit wayward. As I have said before all radaitors seem to heat up at the same rate and get very hot. One question, although I suspect...
  8. L

    Heat Loss Calculations

    Sorry for the confusion, the heating times were: Heating turned on at 17:45 it was 13.0 degrees (6 outside) at 18:45 it was 16.0 degrees and by 19:30 it was 18.5 degrees. All radiators get too hot to touch longer than a few seconds and all over. My concern was if the temperature was say -1...
  9. L

    Heat Loss Calculations

    Sorry for the confusion, the heating times were: Heating turned on at 17:45 it was 13.0 degrees (6 outside) at 18:45 it was 16.0 degrees and by 19:30 it was 18.5 degrees. All radiators get too hot to touch longer than a few seconds and all over. My concern was if the temperature was say -1...
  10. L

    Heat Loss Calculations

    D_hailsham thanks for the comprehensive response. I have managed to get my head round it. In answer to your questions: Does you boiler cycle a lot? Not a great deal Where is the room stat located? Bottom of the stairs (lounge) Do you have TRVs on the rads? No just upstairs bedrooms Do you...
  11. L

    Heat Loss Calculations

    Galoka, things for the link I will have a look at it. Are you saying that I calculate the Heat Loss for the landing separately block, i.e. Length, width and Height of landing with one external wall. This would then be added to the lounge calculation, it give the overall amount. D_Hailsham...
  12. L

    Heat Loss Calculations

    PrenticeBoyofDerry thanks for the info. So for external walls I would need to count up the U values of the Plaster Board (dot and dab) + breeze block + air gap with ALREFLEX insulation (i think that is what it is) + brick skin. Does that sound reasonable. There is no heating on the stairs...
  13. L

    Heat Loss Calculations

    Hoping someone can help, I am trying to do some heat calculations for my Lounge, as I think that my current radiators are undersized for the size of the room and characteristics: I have looked at on-line calculators, but none seem to cover the case where a room is open to the stairs...
  14. Untitled

    Untitled

  15. General

    General

  16. L

    Is this wiring correct?

    Iggifer thinks for the response. Ring in goes directly to the socket. Should have drawn it in a different colour. A wire then comes out of the middle socket to the junction box. a further 3 wires are connected at the junction as follows: Wire out to Left Socket, Wire out of right socket, ring...
  17. L

    Is this wiring correct?

    I removed the skirting boards in a bedroom to allow for fitted units. I noticed that 2 of the 3 sockets on the wall only have 1 wire going in to them. I took up a floor board to have a look and found it was wired as follows: Is this wired currently?
  18. L

    Can incorrect balancing cause Boiler Kettling?

    Agile from what you have said, i need to configure the bypass so that the differential between flow and return at the boiler is 11 degrees. what method should I follow to do this. ie all radaitors open, some closed, post balancing or after balancing? All radiators without TRVs are always left...
  19. L

    Can incorrect balancing cause Boiler Kettling?

    Still trying to understand how much flow should be allowed through the bypass. I have also noticed that when HW is being heated as well as radiators the kettling is much reduced. Can anyone provide anymore info on this problem?
  20. L

    Can incorrect balancing cause Boiler Kettling?

    Potterton Suprima 40L Manual Bypass open 1/4 turn Pump Set to 2 9 radiators, 3 bedroom radiators with TRV's Agile thanks for the initial info. Can you explain why minimal flow is not maintained under more operation. I would assume it would since I only have 3 radaitors that will shutdown...
Back
Top