Hi everyone,
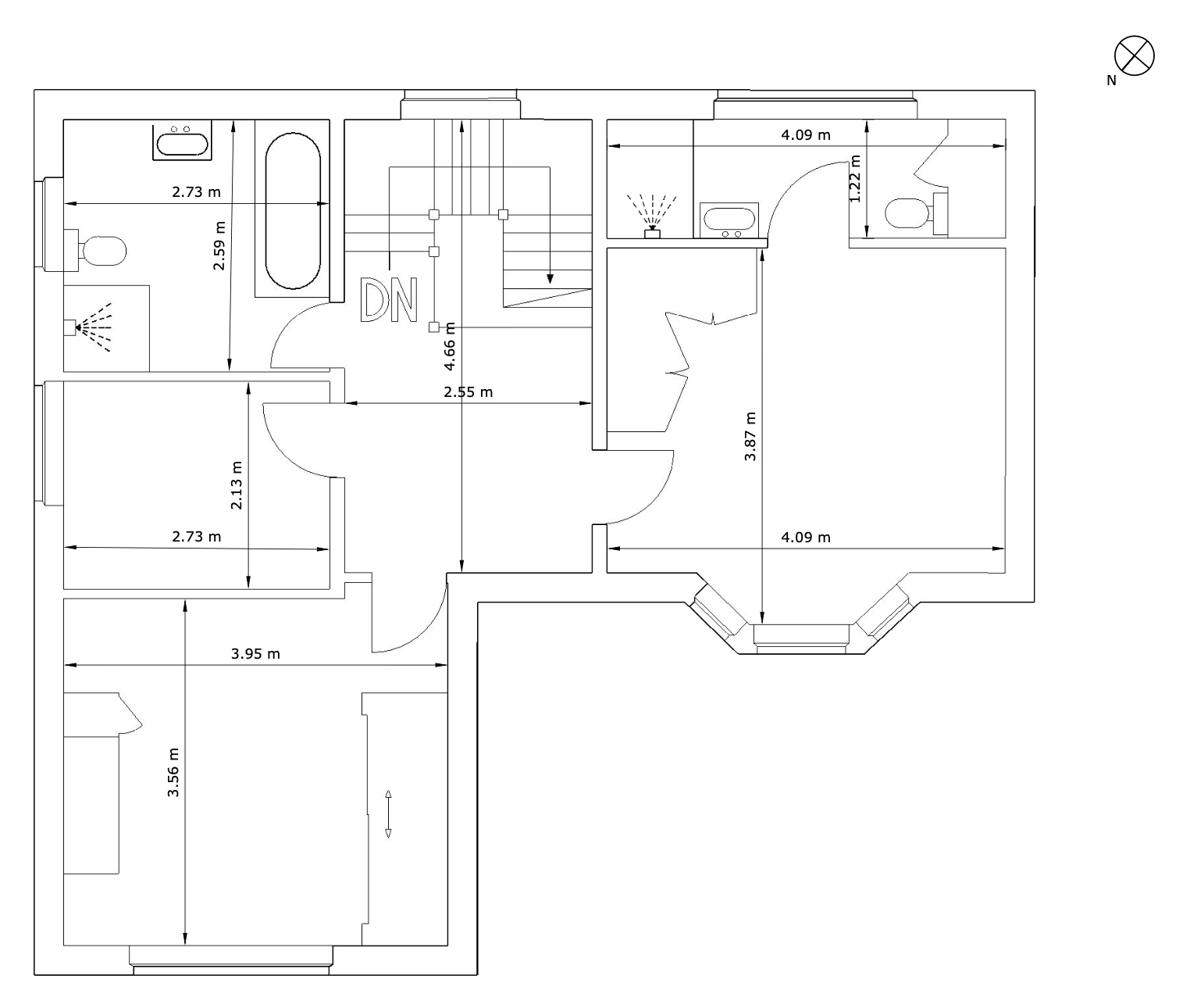
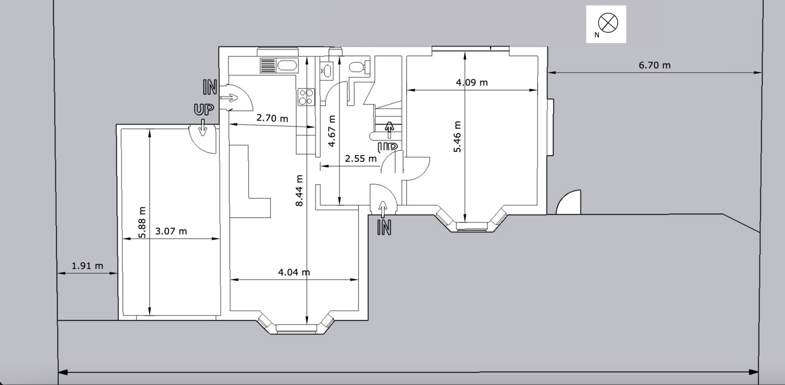
I’m looking for advice on the best way to extend my house to create a 4th bedroom. Based on the floor plans (attached), the staircase is in the middle of the house, with the kitchen/dining room on the left and the living room on the right. I have around 7m of land to the side of the building to work with.
I see two main options:
Thanks in advance!
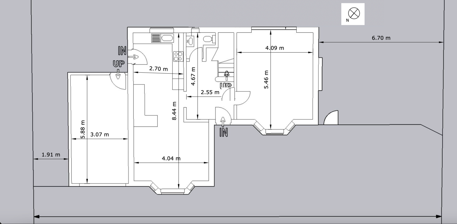
I’m looking for advice on the best way to extend my house to create a 4th bedroom. Based on the floor plans (attached), the staircase is in the middle of the house, with the kitchen/dining room on the left and the living room on the right. I have around 7m of land to the side of the building to work with.
I see two main options:
- Loft Conversion – This would require raising the roof level to get enough headroom, which might be more complex and expensive.
- Two-Story Side Extension – This seems like a more straightforward option, but I’m not sure how best to connect the staircase to the new 4th bedroom. Should it be accessed from the existing landing, or would an additional staircase in the extension work better?
Thanks in advance!
