Hello all!
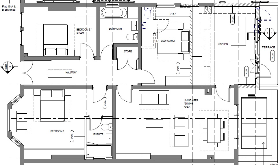
I’m in the process of planning a flat refurbishment (raised ground floor in a semi-detached Victorian conversion in London), including re-doing all the plumbing. Current setup is a cylinder (Heatrae, from memory) and a Worcester bosch system boiler. As per attached floorplan, boiler is in the kitchen, cylinder is in the hallway store. If relevant, the flat size is 130 sqm.
Appreciate I will need to get proper info (especially re flow rate), but was hoping to abuse the vast knowledge of others here to get a sense of practicalities/options/experiences! For the sake of simplicity, I’m just assuming that I have a “good” flow rate.
There will be one main bathroom and an ensuite. Planning on doing wet underfloor heating throughout as well. Just me living there at the moment, but at some point that will change, so understand combi-boiler isn’t the most sensible option. From reading, seems that most would suggest retaining the same setup as now. But from a space/practicality perspective, was wondering whether something like the Viessman Vitodens combi-storage boiler (130L storage)would be a viable alternative?
On a related note, I’d like to use the hallway store for a washing machine/dryer combo on one side, and useful storage (coats, cleaning stuff etc) on the left. Above, however, I have another 2.5m of headroom (there is a staircase above). Obviously need floor reinforcing, but would it be sensible to install cylinder or boiler up above?
Any thoughts / suggestions would be massively appreciated!
I’m in the process of planning a flat refurbishment (raised ground floor in a semi-detached Victorian conversion in London), including re-doing all the plumbing. Current setup is a cylinder (Heatrae, from memory) and a Worcester bosch system boiler. As per attached floorplan, boiler is in the kitchen, cylinder is in the hallway store. If relevant, the flat size is 130 sqm.
Appreciate I will need to get proper info (especially re flow rate), but was hoping to abuse the vast knowledge of others here to get a sense of practicalities/options/experiences! For the sake of simplicity, I’m just assuming that I have a “good” flow rate.
There will be one main bathroom and an ensuite. Planning on doing wet underfloor heating throughout as well. Just me living there at the moment, but at some point that will change, so understand combi-boiler isn’t the most sensible option. From reading, seems that most would suggest retaining the same setup as now. But from a space/practicality perspective, was wondering whether something like the Viessman Vitodens combi-storage boiler (130L storage)would be a viable alternative?
On a related note, I’d like to use the hallway store for a washing machine/dryer combo on one side, and useful storage (coats, cleaning stuff etc) on the left. Above, however, I have another 2.5m of headroom (there is a staircase above). Obviously need floor reinforcing, but would it be sensible to install cylinder or boiler up above?
Any thoughts / suggestions would be massively appreciated!
