Hi,
I just got refused planning for a 6m larger home extension. The reason for the refusal is as follows.
XXXXX Council can confirm that the above proposal does not meet the requirements of prior approval as the proposed extension would not meet some of the permitted development criteria of Class A: A.1 (J) the enlarged part of the dwellinghouse would extend beyond a wall forming a side elevation of the original dwellinghouse, and would - (iii) have a width greater than half the width of the original dwellinghouse
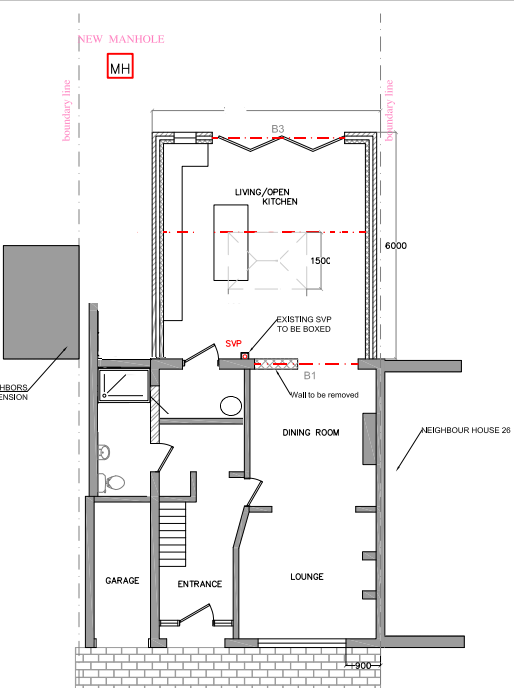
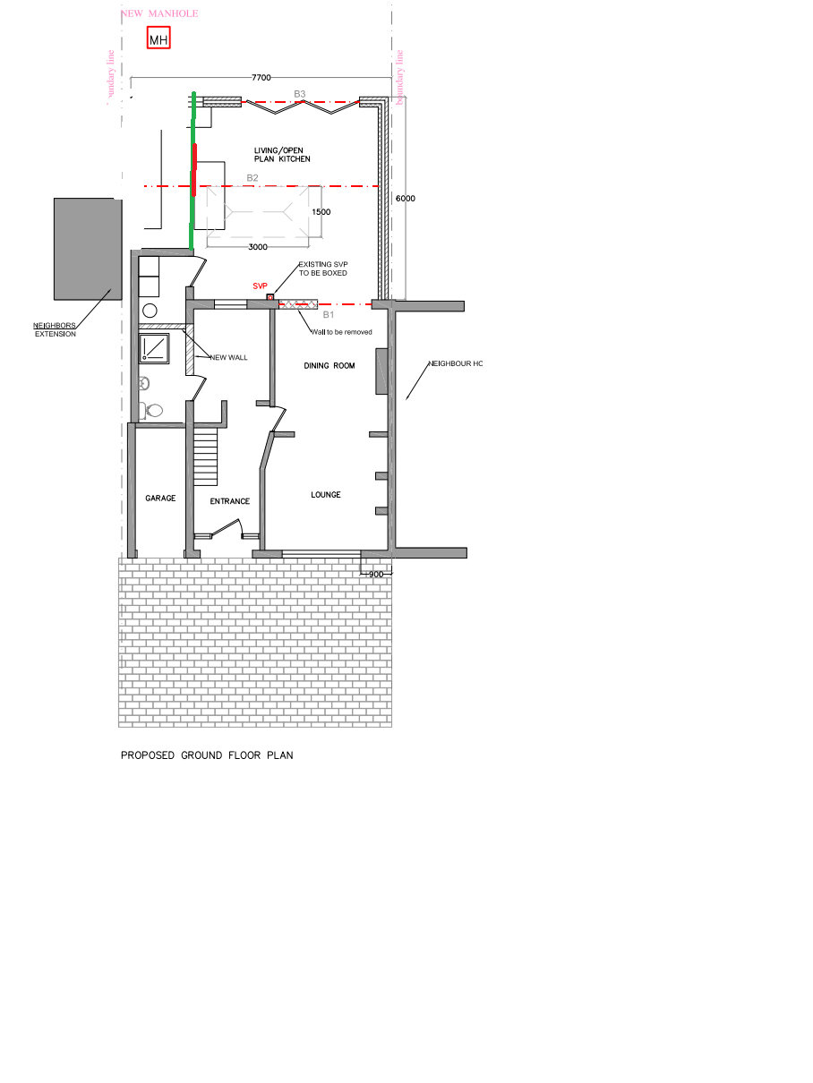
Below is a snapshot of the submitted plans. I would be grateful if someone can explain the reason for the refusal to me, the road behind me got same approval.
Existing
Proposed
I just got refused planning for a 6m larger home extension. The reason for the refusal is as follows.
XXXXX Council can confirm that the above proposal does not meet the requirements of prior approval as the proposed extension would not meet some of the permitted development criteria of Class A: A.1 (J) the enlarged part of the dwellinghouse would extend beyond a wall forming a side elevation of the original dwellinghouse, and would - (iii) have a width greater than half the width of the original dwellinghouse
Below is a snapshot of the submitted plans. I would be grateful if someone can explain the reason for the refusal to me, the road behind me got same approval.
Existing
Proposed
