Hello all,
I'm looking for some advice please. I'm a beginner at this kind of stuff, so please feel free to treat me like a philistine I won't be offended!
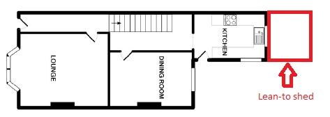
I am in the process of buying a new house and for one reason or another the kitchen is a little too small for our needs (1st baby on the way!). One option we have had suggested is to convert the current shed (or build a new one) to house the washing machine and/or the tumble dryer. A rought idea of the floor plan is shown below:
The red outline shows where we would like to build a shed/lean-to (you can click on the diagram to enlarge I think). (Ignore the fact that it looks like there is a window in the shared wall, this is not the case).
There is currently a small freestanding shed in this position, but its probably not big enough for what we need, so we'll most likely need to build a new one. However, before I start thinking in too much detail about this project i'd appreciate some comments/thoughts on the questions below please:
- Main question: what would be the pros/cons of building a lean-to rather than a free standing shed (NB I may not be using the correct terminology here... by lean-to I really just mean that the shed will be 'attached' to the exterior wall of the kitchen and share that existing wall)
- If I decide to go down the 'lean-to' route I figure I have a couple of options... either build a bespoke shed/lean-to from scratch or buy a pre-fab shed from a DIY shop and adapt it as required. I know you can download plans from the web. My DIY skills are reasonably competent as far as carpentry goes. Can anyone who has done this give me some ball-park advice on how difficult it is? How long it would take? Advantages in terms of costs over buying a pre-fab shed from a DIY shop (if there are any?)
- One of the main requirements will be that we take the plumbing and electricity through the exterior wall from the kitchen. Would a lean-to make this an easier job than a freestanding shed? (I'm reasoning that in this case we could just install some electricity points on the outer side of the kitchen wall, rather than cabling to the shed even if thats only a matter of inches). Does this have implications for planning permission or building regulations?
- In my experience washing machines tend to vibrate a lot...! Would it be ok to site a washing machine on a typical 'shed-style' floor or would I need to adapt some kind of concrete base to site the shed on?
- Finally, apologies for posting this in two seperate themes - I wasn't sure if this is best suited to the garden or general building themes. Moderators - please feel free to delete or move if required.
Many thanks for your advice,
Tom
I'm looking for some advice please. I'm a beginner at this kind of stuff, so please feel free to treat me like a philistine I won't be offended!
I am in the process of buying a new house and for one reason or another the kitchen is a little too small for our needs (1st baby on the way!). One option we have had suggested is to convert the current shed (or build a new one) to house the washing machine and/or the tumble dryer. A rought idea of the floor plan is shown below:
The red outline shows where we would like to build a shed/lean-to (you can click on the diagram to enlarge I think). (Ignore the fact that it looks like there is a window in the shared wall, this is not the case).
There is currently a small freestanding shed in this position, but its probably not big enough for what we need, so we'll most likely need to build a new one. However, before I start thinking in too much detail about this project i'd appreciate some comments/thoughts on the questions below please:
- Main question: what would be the pros/cons of building a lean-to rather than a free standing shed (NB I may not be using the correct terminology here... by lean-to I really just mean that the shed will be 'attached' to the exterior wall of the kitchen and share that existing wall)
- If I decide to go down the 'lean-to' route I figure I have a couple of options... either build a bespoke shed/lean-to from scratch or buy a pre-fab shed from a DIY shop and adapt it as required. I know you can download plans from the web. My DIY skills are reasonably competent as far as carpentry goes. Can anyone who has done this give me some ball-park advice on how difficult it is? How long it would take? Advantages in terms of costs over buying a pre-fab shed from a DIY shop (if there are any?)
- One of the main requirements will be that we take the plumbing and electricity through the exterior wall from the kitchen. Would a lean-to make this an easier job than a freestanding shed? (I'm reasoning that in this case we could just install some electricity points on the outer side of the kitchen wall, rather than cabling to the shed even if thats only a matter of inches). Does this have implications for planning permission or building regulations?
- In my experience washing machines tend to vibrate a lot...! Would it be ok to site a washing machine on a typical 'shed-style' floor or would I need to adapt some kind of concrete base to site the shed on?
- Finally, apologies for posting this in two seperate themes - I wasn't sure if this is best suited to the garden or general building themes. Moderators - please feel free to delete or move if required.
Many thanks for your advice,
Tom
