- Joined
- 3 Mar 2022
- Messages
- 6
- Reaction score
- 0
- Country

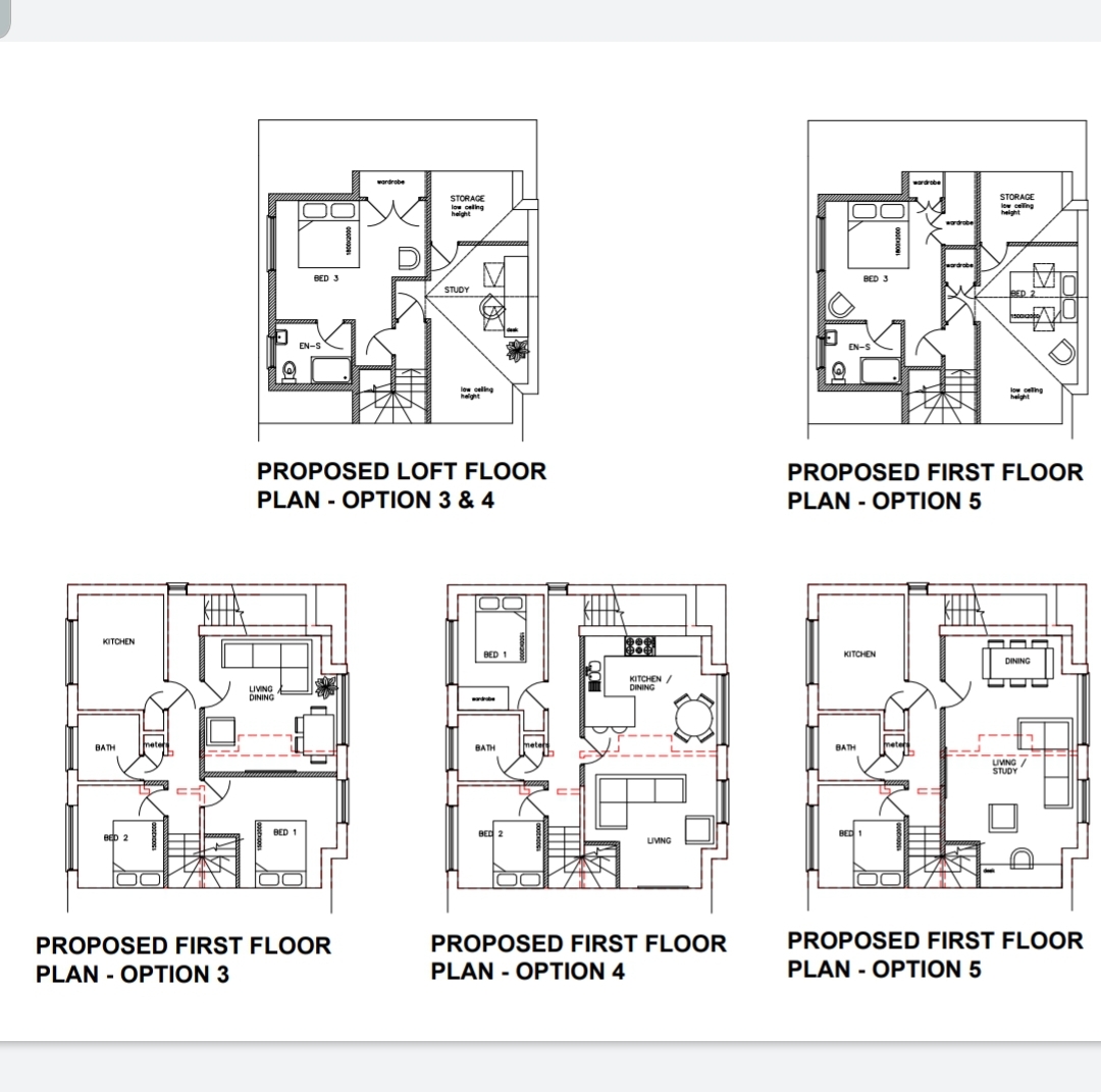
Hi,
We recently purchased purpose built 2 bed maisonette on 1st floor where we have been tenants for past 4 years. We have a decent size Loft to be converted into Bedrooms with Full Dormer at back of property. We have involved Architect to draw plans and were provided with 6 options. Due to fire escape regulations for Loft stairs to be added as enclosed space to allow escape, we are losing decent amount of space on 1st floor if stairs are located inside the rooms or if were to extend side of property and add stack of stairs on above the current stairs. One option is provided for upside down living but skeptical if there would be any drop in property value.
I am attaching plans and wanted suggestions if there is best ways to utilize the corridors for escape route or have no corridor or compromise on smaller rooms with stairs to loft in sacrifice of bedroom space?
Many Thanks
We recently purchased purpose built 2 bed maisonette on 1st floor where we have been tenants for past 4 years. We have a decent size Loft to be converted into Bedrooms with Full Dormer at back of property. We have involved Architect to draw plans and were provided with 6 options. Due to fire escape regulations for Loft stairs to be added as enclosed space to allow escape, we are losing decent amount of space on 1st floor if stairs are located inside the rooms or if were to extend side of property and add stack of stairs on above the current stairs. One option is provided for upside down living but skeptical if there would be any drop in property value.
I am attaching plans and wanted suggestions if there is best ways to utilize the corridors for escape route or have no corridor or compromise on smaller rooms with stairs to loft in sacrifice of bedroom space?
Many Thanks