Minimum internal wall return on extension

Many thanks RonnyRaygun for that info. If you are to install wind posts into the cavity, I am assuming that you will need to remove the corner of the wall for this to be installed? Isn't this expensive?
 
Hi Akk223.

Just as a follow up to this the outcome in the end was that the structural engineers recalculated and agreed that if the return was rebuilt in engineering bricks then they would be happy.

Simple and easy job to do, can't remember exactly what the return was but something around 1 block on the outer and 15cm on the inner skin.

Hope that helps.
 
Many thanks RonnyRaygun for that info. If you are to install wind posts into the cavity, I am assuming that you will need to remove the corner of the wall for this to be installed? Isn't this expensive?
The post doesn't have to go in the cavity - alternatively it could be tight to the inner leaf. This would only cost you 100mm or so and could be clad so that it looks like part of the door frame.

I was actually thinking you were talking about a new build extension which is why I suggested a wind post in the cavity.
 
Great. I will liaise with the SE and see what new issues he brings this time

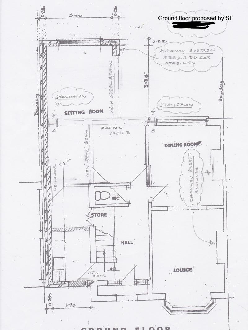
Basically my position is as this. I have currently have purchased a house which has previously had an extension done from North to South of the side of the house. This is a two-storey extension with the last one meter of the rear garden being a single storey extension with a pitched roof. I am now looking at the installing bio-fold doors which would be shaped as a cornerless L. the top of the Letter L being where the issue is with the return.

A further issue which has been identified by the SE is that the universal beams would be sitting on the parameter of the wall and therefore I need to consider thermal issues to cover the steal beams. Does anyone have any suggestions of how to cover the steal beams without installing a canopy? (And which can blend with the existing brickwork) below the beams would be the biofold doors.

Many thanks for your help in advance.
 
The plans posted is the proposed layout by the SE. He has used these drawings based on the architectural plans when the property was extended.
 
Don't know about the thermal issues - maybe one of the architectural bods can help there - but you can certainly lose the buttress with a little thought from the SE.
Maybe a wind post directly between the foundation and the steel beam (as long as the perpendicular beam can withstand the wind loads). Alternatively an "L" shaped wind post with the bottom of the "L" resin fixed to the existing foundation.
As above, it's possible an engineering brick pier would work if the circumstances are right.
You need to talk to your SE and ask him to explore alternatives if you are certain you don't want the buttress.
 
Dont know if this will help but i have just had plans drawn for my extension and the min return i could have was i think 667mm.
for various reasons i wanted the return as small as poss this being no return just the thicknes of the wall.
Anyway we acheived this with a wind post resin bolted to the floor set in the cavity or to the inner leaf with frame cramps.
Not sure it helps Damien
 

If you need to find a tradesperson to get your job done, please try our local search below, or if you are doing it yourself you can find suppliers local to you.

Select the supplier or trade you require, enter your location to begin your search.


Are you a trade or supplier? You can create your listing free at DIYnot Local

 
Back
Top