- Joined
- 18 Apr 2020
- Messages
- 59
- Reaction score
- 2
- Country

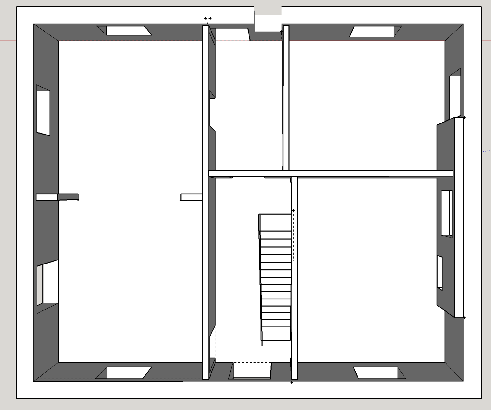
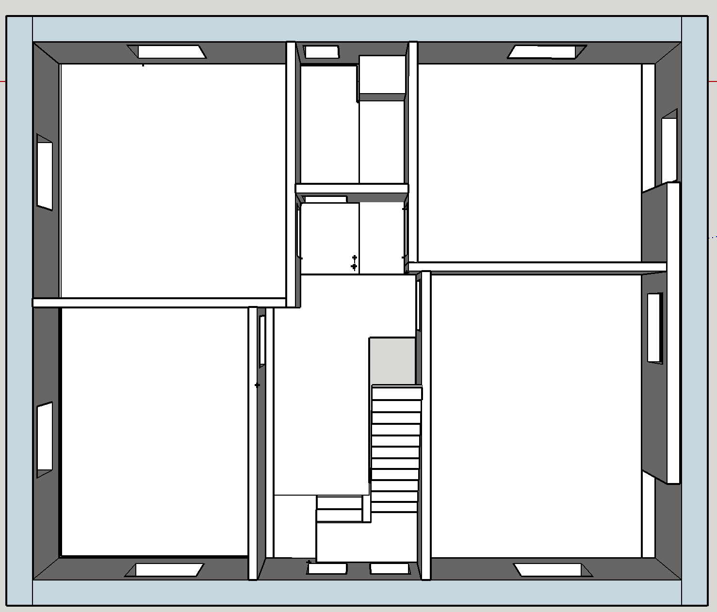
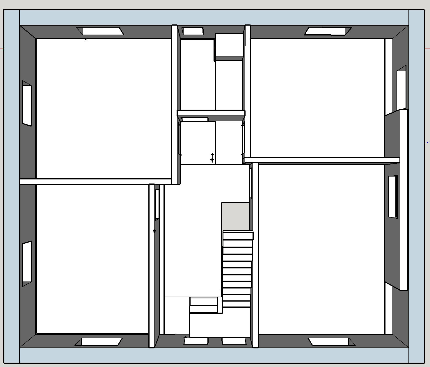
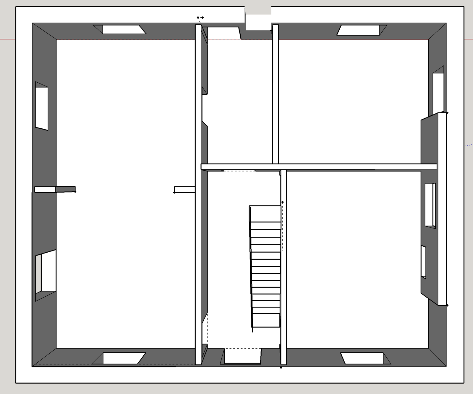
Hi, we have a victorian brick house we are converting the loft on. Ive attached our proposed floorplan.
One of the issues Im having trouble overcoming is the fire planning. it appears fire engineers are like hens teeth. I literally cannot find anyone to assist who is anywhere near to me.
Anyway, we want to open up the landing area up to the loft. The fire regs appear to prefer that we didn't.
It is a domestic residence and a sprinkler system seems overkill.
Can an early detection mains powered, hardwired with backup battery, smoke alarm suffice for this layout?
We are taking a bathroom out to create the new loft stairs, so there actually is a door and stud wall at the moment, which could stay for fire regs, however our preference would be to open it up.
Can anyone point me in the direction of somebody who could assist with our fire plan? or any advice gratefully received.
One of the issues Im having trouble overcoming is the fire planning. it appears fire engineers are like hens teeth. I literally cannot find anyone to assist who is anywhere near to me.
Anyway, we want to open up the landing area up to the loft. The fire regs appear to prefer that we didn't.
It is a domestic residence and a sprinkler system seems overkill.
Can an early detection mains powered, hardwired with backup battery, smoke alarm suffice for this layout?
We are taking a bathroom out to create the new loft stairs, so there actually is a door and stud wall at the moment, which could stay for fire regs, however our preference would be to open it up.
Can anyone point me in the direction of somebody who could assist with our fire plan? or any advice gratefully received.