Hey guys
As some ofbyou will know I'm doing an assessment and I have to draw some cables on a diagram.
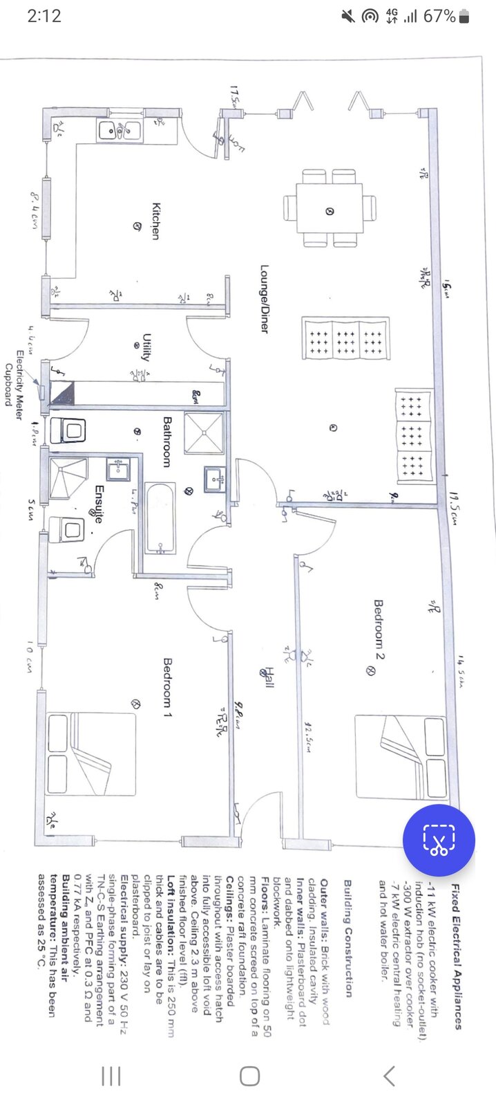
I have done a basic diagram just for my understanding and hoppe someone can help me.
I'm doing a ring circuit. Cables will go up the wall into the loft . Floor is concrete.
To avoid insulation I will clip them above the joist. If you can see from my diagram . To from socket A to B can I lay the cables and clip them ontop the joist like that? I know i usually have to run it alongside the joist but in this situation I can't. So would this be acceptable ?
P.S I know i can include insulation as a factor in my cable calcs but that would mean I can't use a ring and have to make multiple radials circuits which I don't want. I want to do it like this.
Also if you see from socket C can I take the cable in a diagonal over the joists ?
My diagram is just an example for my understanding and not the work I plan to submit.
Thank you all!
As some ofbyou will know I'm doing an assessment and I have to draw some cables on a diagram.
I have done a basic diagram just for my understanding and hoppe someone can help me.
I'm doing a ring circuit. Cables will go up the wall into the loft . Floor is concrete.
To avoid insulation I will clip them above the joist. If you can see from my diagram . To from socket A to B can I lay the cables and clip them ontop the joist like that? I know i usually have to run it alongside the joist but in this situation I can't. So would this be acceptable ?
P.S I know i can include insulation as a factor in my cable calcs but that would mean I can't use a ring and have to make multiple radials circuits which I don't want. I want to do it like this.
Also if you see from socket C can I take the cable in a diagonal over the joists ?
My diagram is just an example for my understanding and not the work I plan to submit.
Thank you all!
