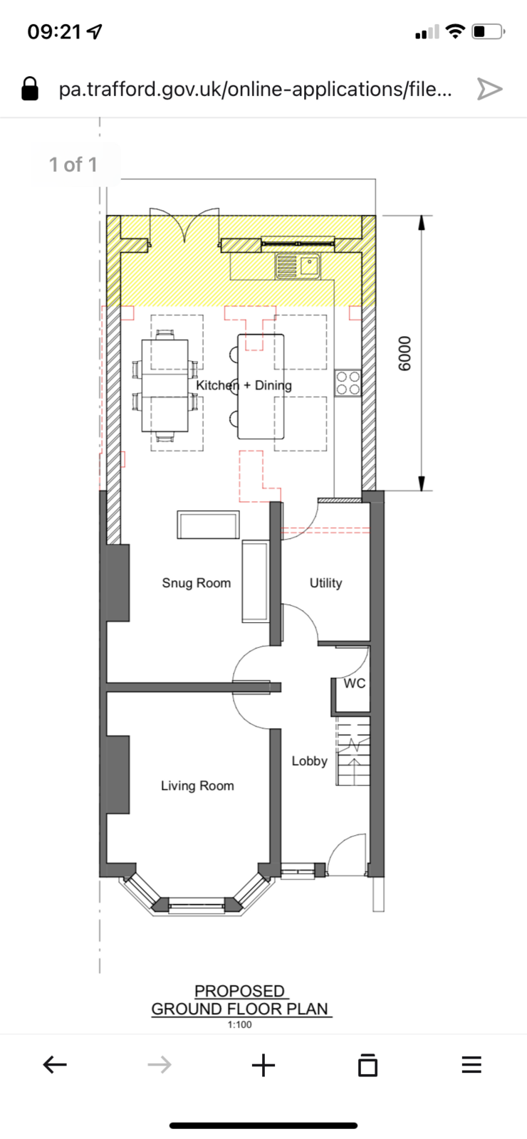
I have plans submitted (see attached) for a larger rear extension but I’m not sure I have the stomach, or funds, for a full demolish and rebuild which is what my architect has proposed.
I'd also add that having lived here for 12 months, we've agreed that we'll likely move again in 5-10 years as we're a bit close to a sewage processing plant and get some nasty smells more often than we'd like
Anyway, the garden faces south west and the combination of the budget roof lantern and french doors makes the space uncomfortably hot in the summer and too cold in the winter.
The additional space would be great and we want a new kitchen anyway but I'm wondering if I could more easily and cheaply deal with my biggest complaint. I envisage three options and would like to know your thoughts on cost/time/complexity:
1. New roof lantern and flat roof with an insulated horizontal blind.
2. Rebuild the entire roof across the entire rear extension.
3. Save for longer and proceed with the extension.
I'd also add that having lived here for 12 months, we've agreed that we'll likely move again in 5-10 years as we're a bit close to a sewage processing plant and get some nasty smells more often than we'd like
Anyway, the garden faces south west and the combination of the budget roof lantern and french doors makes the space uncomfortably hot in the summer and too cold in the winter.
The additional space would be great and we want a new kitchen anyway but I'm wondering if I could more easily and cheaply deal with my biggest complaint. I envisage three options and would like to know your thoughts on cost/time/complexity:
1. New roof lantern and flat roof with an insulated horizontal blind.
2. Rebuild the entire roof across the entire rear extension.
3. Save for longer and proceed with the extension.
Attachments
-
58398382-E4A4-48BE-A94F-21BF0A0544ED.jpeg209.3 KB · Views: 137 -
E418FA4B-8DA2-431A-8050-E3CE6AB8D86A.jpeg238.6 KB · Views: 153 -
BF6AD422-9BA5-40B6-9748-815D2300EEA9.jpeg184 KB · Views: 165 -
8B1A7FEC-A818-4A92-9CA8-A0E07B99D698.jpeg403.5 KB · Views: 131 -
1CDB8F42-4A1A-46F5-A4DA-38D00D28A130.jpeg245.1 KB · Views: 139 -
AF6A23DB-7211-4E20-83D7-782D2A71DA01.jpeg389.8 KB · Views: 137 -
0E6BAE89-9EB7-4CA8-AA62-3C5190531A1D.png115 KB · Views: 141 -
35CD0670-669F-4CD8-9E45-58AFF1FEC3AF.png225.5 KB · Views: 154
Last edited:
