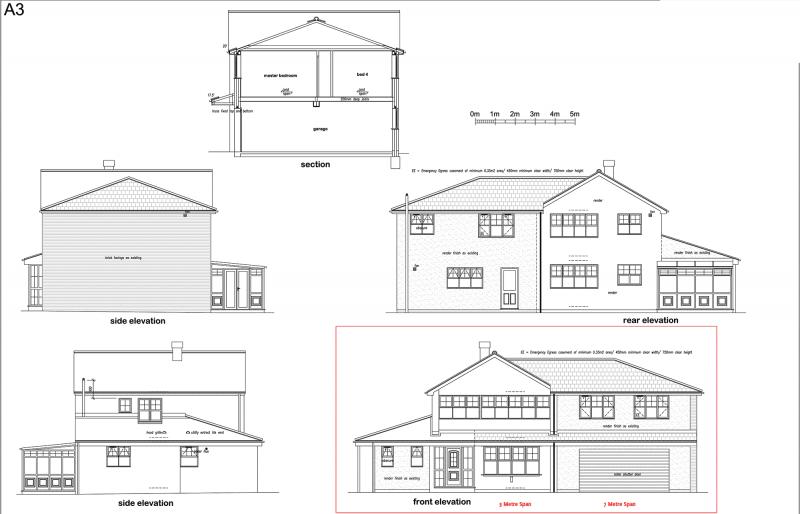
Could anyone suggest the best way of going about supporting a canopy over a large span, on the attached drawing it shows gallows brackets, but these would be insufficient to cover the weight over the span or would need to be very large and look stupid..
Are brick piers the best way, do I need a form of lintel, particularly for the large 7 metre span on the front of the garage or would wood suffice..
The canopy is to join the existing one on the porch, any advice is appreciated..
Thanks..
Are brick piers the best way, do I need a form of lintel, particularly for the large 7 metre span on the front of the garage or would wood suffice..
The canopy is to join the existing one on the porch, any advice is appreciated..
Thanks..
