Hi,
Excuse me if this request for advice is beyond silly as my knowledge of structural works is low at the moment.
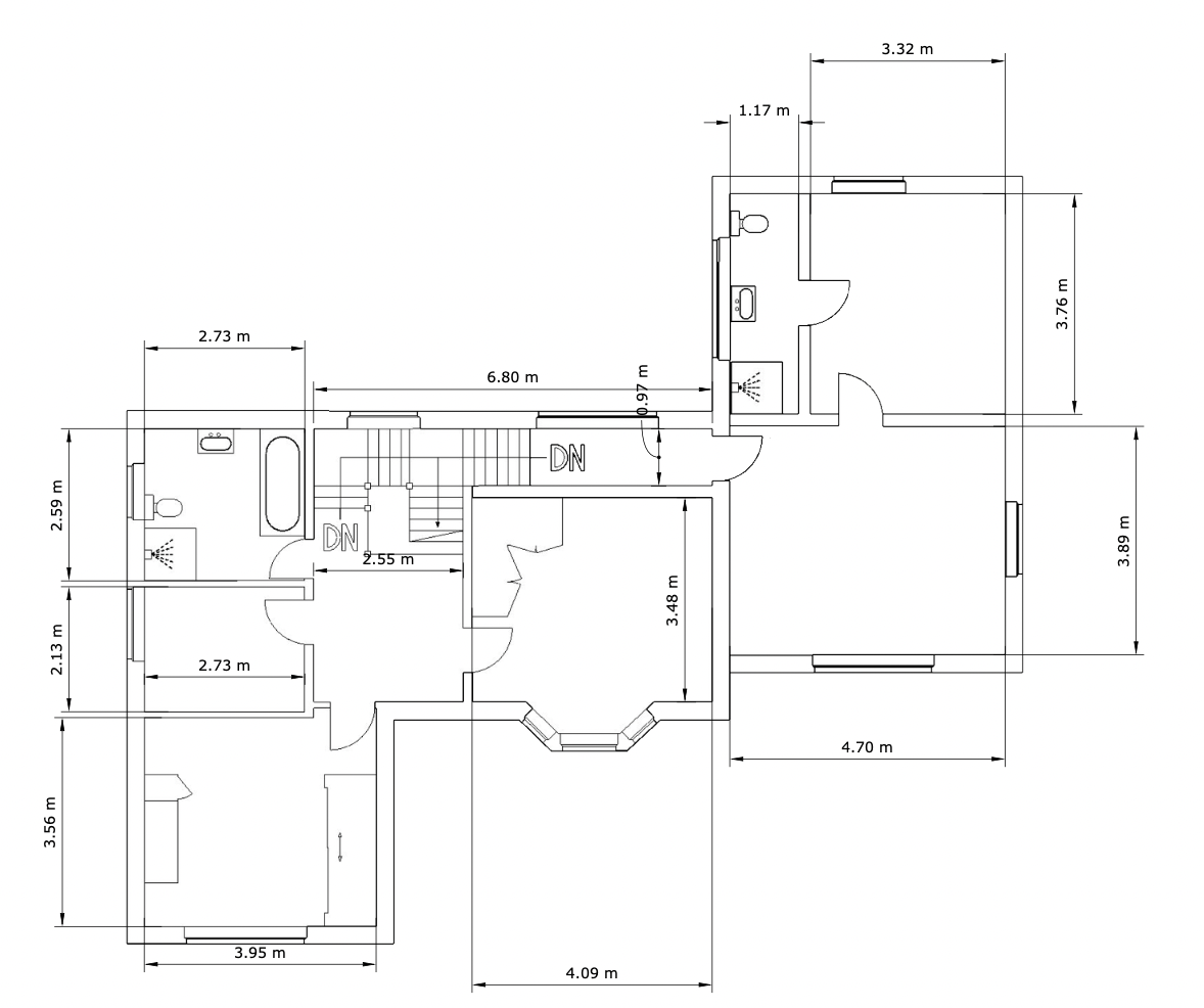
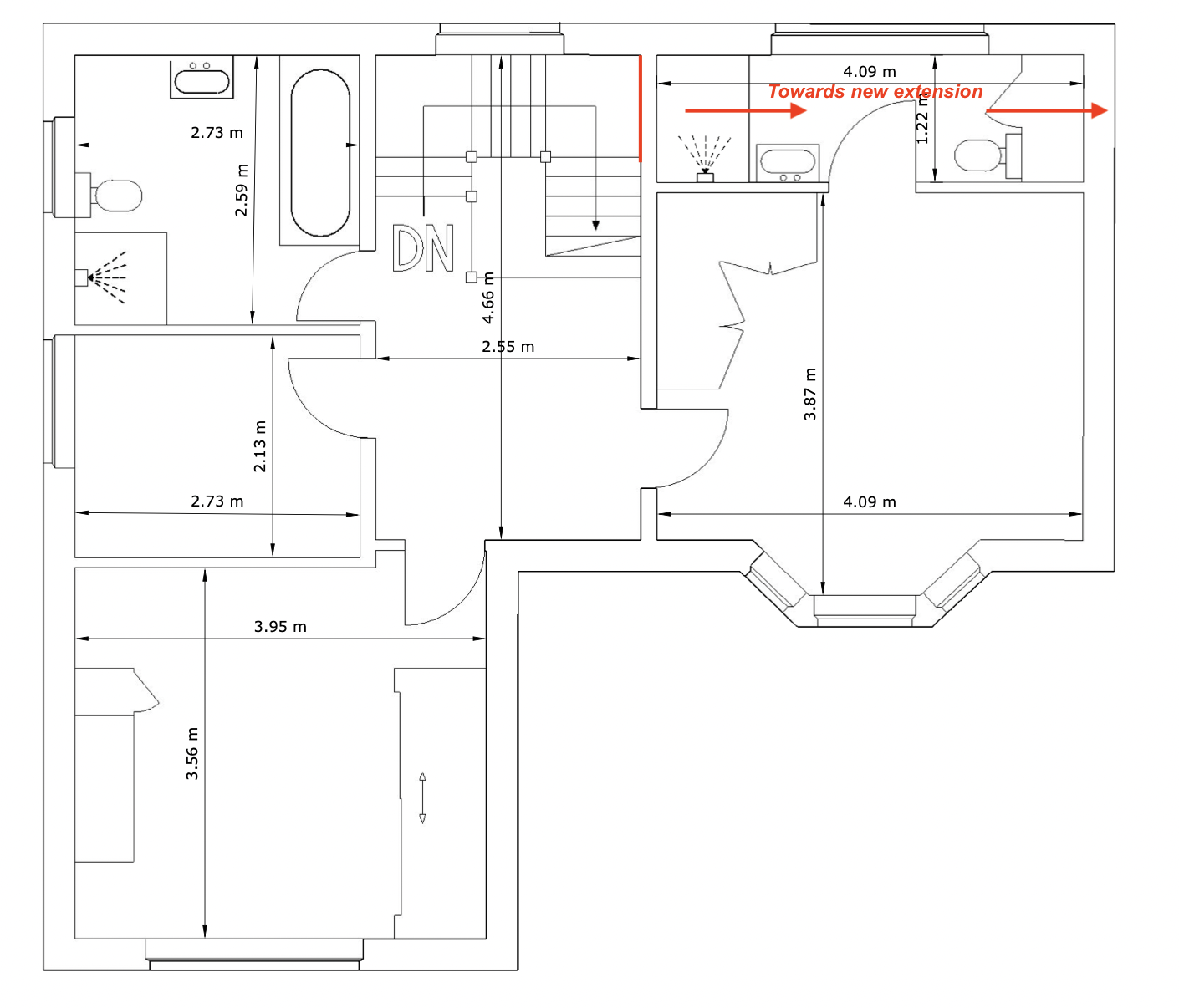
I am at the planning stage of building a two storey side extension. Before engaging SE I wanted to double check if anyone has experience on knocking down part of the walls (assume load-bearing?) around staircase to make space for new stairs to the 1st floor of the planned extension.
The idea is to knock through as much as possible height wise so that the general feel of the staircase is maintained and build about 7 steps to a landing that would lead through what is currently an existing en suite bathroom of a master bedroom to the planned extensions 1st floor area where new bedroom and bathroom will be. This will mean the bathroom will be replaced by a landing as attached.
Would it be possible to use set acrow props to support the stairs and then another set of acrow props from the middle landing up to support the wall if load bearing or I am talking complete nonsense and it is not possible. If however it is possible how high I could knock the opening through to make it look more like extended staircase and place the lintel above?
I wonder if it is at all possible from the structural and economical point of view. Let me know what are your thoughts.
Excuse me if this request for advice is beyond silly as my knowledge of structural works is low at the moment.
I am at the planning stage of building a two storey side extension. Before engaging SE I wanted to double check if anyone has experience on knocking down part of the walls (assume load-bearing?) around staircase to make space for new stairs to the 1st floor of the planned extension.
The idea is to knock through as much as possible height wise so that the general feel of the staircase is maintained and build about 7 steps to a landing that would lead through what is currently an existing en suite bathroom of a master bedroom to the planned extensions 1st floor area where new bedroom and bathroom will be. This will mean the bathroom will be replaced by a landing as attached.
Would it be possible to use set acrow props to support the stairs and then another set of acrow props from the middle landing up to support the wall if load bearing or I am talking complete nonsense and it is not possible. If however it is possible how high I could knock the opening through to make it look more like extended staircase and place the lintel above?
I wonder if it is at all possible from the structural and economical point of view. Let me know what are your thoughts.
Attachments
-
stairs from 1st floor landing 2 with indication of the new opening for new stairs.jpeg186.1 KB · Views: 180 -
stairs from 2nd mid level landing with indication of new opening.jpeg117.4 KB · Views: 162 -
stairs from ground floor.jpeg177.3 KB · Views: 139 -
first floor plan with indication of the new opening for new stairs.png546 KB · Views: 145 -
proposed first floor plan.png469.1 KB · Views: 159
Last edited:
