- Joined
- 30 Jan 2022
- Messages
- 2
- Reaction score
- 0
- Country

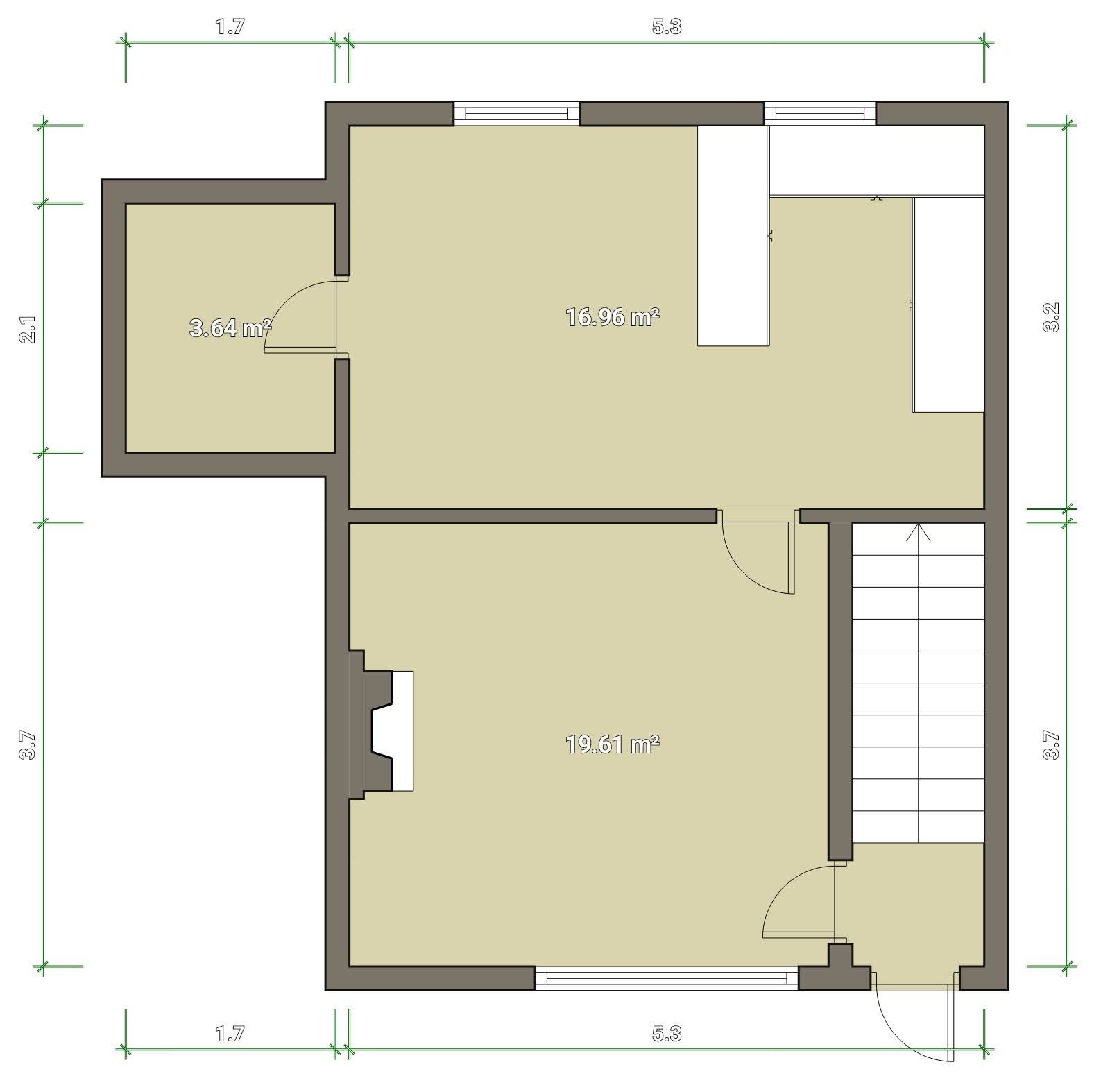
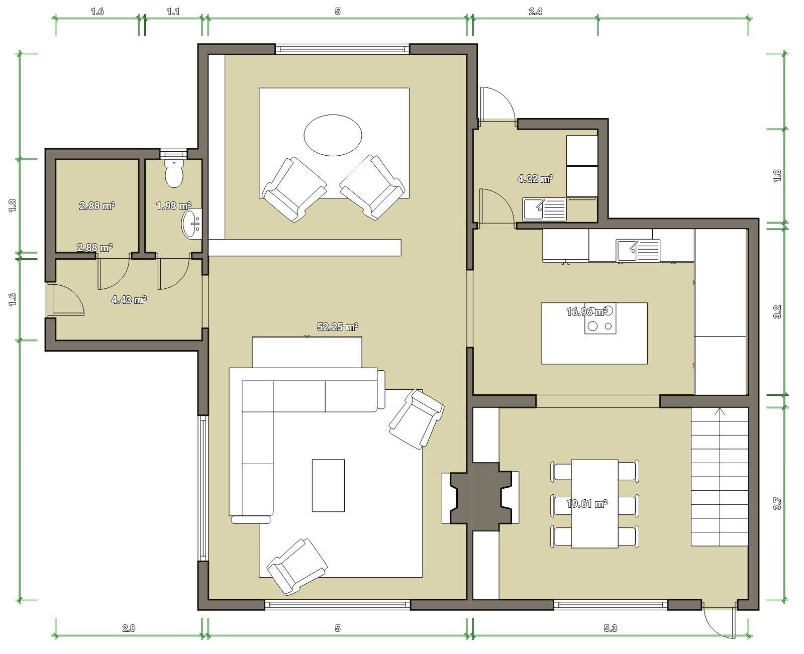
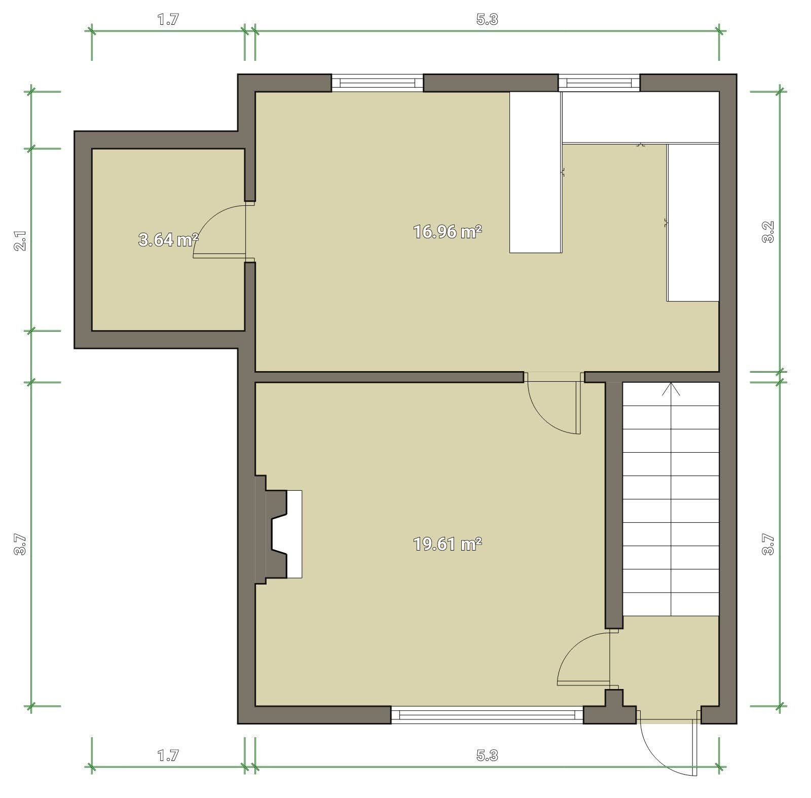
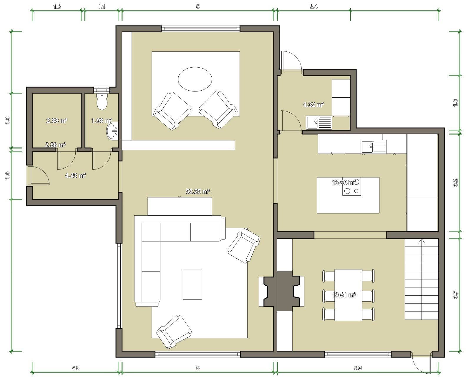
Hi there all! We are just embarking on a journey to extend our diminutive cottage by doubling the footprint. For a bit of background, we are a semi detached property with nobody else in the immediate surroundings, and next door have already completed the same size extension although they had a different floorplan due to an existing loft conversion. We are quietly confident we should be able to get the same planning permission. I have already got an Architect on board, who has come up with a fairly simple design (as requested) without moving too much about (bathroom and kitchen staying in same place) and he thinks that keeping the ground floor extended room open would serve well as a living space which can be divided with furniture and be more useful. I would love it if this hivemind of people who have already completed extensions cast an eye over the floorplan and tell me if they think I'm missing a trick or not visualising it properly, I can see it working but I wonder if it would be better to use the space better. I have attached pictures that I replicated using a floorplan app (couldn't scan his designs at home), and although it's a bit rough it does give the general idea. The extension would be 50m2 double storey, adding an extra large living space, entrance, WC, boot room and utility downstairs and 2 bedrooms (totalling 3 large, one small) and an extra en suite and dressing room upstairs.
If anyone is interested, I've had 2 quotes so far, one from a large firm who rough quoted £200k (not including fixtures and fittings) and another small outfit quoted £130k finished.
Just felt the need to edit and say that we are still considering whether or not to extend or just move. But we won't find another house like we have, the area is perfect and we have 0.3 acre plot here. I showed the plans to the estate agent who sold it to us and they said would look to market it at 425k (pre-pandemic and the house market going silly), we bought it for 270k, we would just about break even or even lose a bit initially but the hope is house prices will continue to rise slowly.
If anyone is interested, I've had 2 quotes so far, one from a large firm who rough quoted £200k (not including fixtures and fittings) and another small outfit quoted £130k finished.
Just felt the need to edit and say that we are still considering whether or not to extend or just move. But we won't find another house like we have, the area is perfect and we have 0.3 acre plot here. I showed the plans to the estate agent who sold it to us and they said would look to market it at 425k (pre-pandemic and the house market going silly), we bought it for 270k, we would just about break even or even lose a bit initially but the hope is house prices will continue to rise slowly.
Attachments
Last edited: