First post...and sorry it is so long ; your advice is very much appreciated!
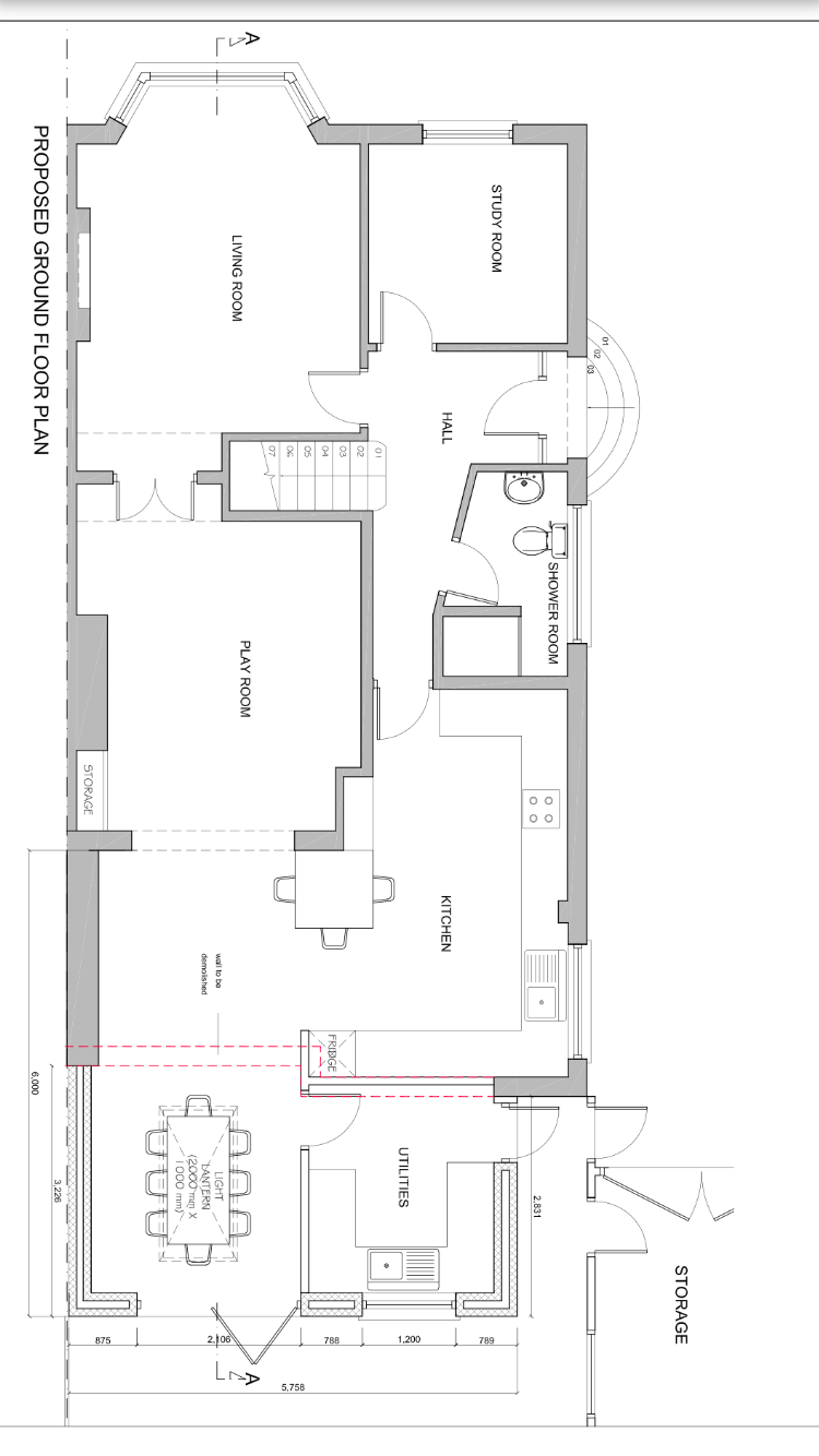
Background: We live in a London suburb, semi detached house with an existing 3m rear extension (3.3m at eaves, a flat roof, built ~8 years ago).
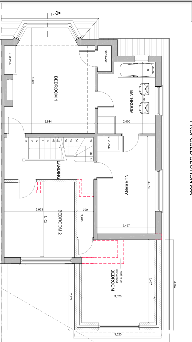
We originally applied via full planning for a loft, 1st floor rear/side extension, and ground floor extension (further 3m), which was refused.
We reapplied with a more conservatively drawn loft and 1st floor only, for which permission was granted, and separately went through the neighbour consultation scheme (NCS) for ground floor extension; and have been informed prior approval is not required.
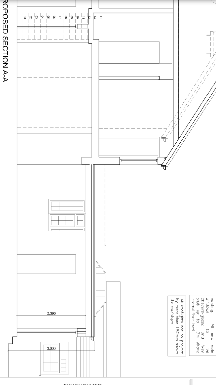
A few questions re proposed rear extension under PD- we were advised to reduce the eaves height of the existing 3m rear extension's flat roof to match new bit of extension otherwise it would not be PD as it will be considered 1 6m extension.
1) i am now reading RIDGE height can be up to 4 m as long as the eaves height is <3m. So could we have kept the existing 3.3height extension and done a pitched roof in the new part of the extension with a 3m eaves height, or would it not be allowed to have a section of flat roof higher than 3m? or alter the current flat roof entirely eg pitch the whole 6 m somehow. or any other sensible workarounds as I am not keen to reduce the height of the entire extension to 3m. i am mainly concerned that with a 6m flat roof the kitchen will feel quite low internally and not allow for enough light.
need some idea of what looks best for this larger extension externally / internally. note there is also first floor 3m extension planned spanning half the width (see plans) so not sure if this effects the ground floor extension roof design.
2) is there any particular order i need to do my build (eg ground floor under PD first, or 2story +loft extension granted under planning first, or either way?)
3) if we change the ground floor plan from what we submitted via NCS would we need to reapply to NCS/ or get a Lawful Development Certificate (LDC) with amended drawings , or just crack on with build as long as its PD?
4) is it advisable to get LDC anyways prior to build just in case as we are unclear re PD rules. this is what
our builders want to do
thanks so much!

Background: We live in a London suburb, semi detached house with an existing 3m rear extension (3.3m at eaves, a flat roof, built ~8 years ago).
We originally applied via full planning for a loft, 1st floor rear/side extension, and ground floor extension (further 3m), which was refused.
We reapplied with a more conservatively drawn loft and 1st floor only, for which permission was granted, and separately went through the neighbour consultation scheme (NCS) for ground floor extension; and have been informed prior approval is not required.
A few questions re proposed rear extension under PD- we were advised to reduce the eaves height of the existing 3m rear extension's flat roof to match new bit of extension otherwise it would not be PD as it will be considered 1 6m extension.
1) i am now reading RIDGE height can be up to 4 m as long as the eaves height is <3m. So could we have kept the existing 3.3height extension and done a pitched roof in the new part of the extension with a 3m eaves height, or would it not be allowed to have a section of flat roof higher than 3m? or alter the current flat roof entirely eg pitch the whole 6 m somehow. or any other sensible workarounds as I am not keen to reduce the height of the entire extension to 3m. i am mainly concerned that with a 6m flat roof the kitchen will feel quite low internally and not allow for enough light.
need some idea of what looks best for this larger extension externally / internally. note there is also first floor 3m extension planned spanning half the width (see plans) so not sure if this effects the ground floor extension roof design.
2) is there any particular order i need to do my build (eg ground floor under PD first, or 2story +loft extension granted under planning first, or either way?)
3) if we change the ground floor plan from what we submitted via NCS would we need to reapply to NCS/ or get a Lawful Development Certificate (LDC) with amended drawings , or just crack on with build as long as its PD?
4) is it advisable to get LDC anyways prior to build just in case as we are unclear re PD rules. this is what
our builders want to do
thanks so much!
Last edited:






