Hi,
Not sure if this is the right place to post it
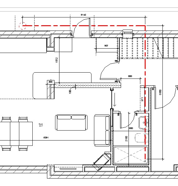
I was thinking to add a new bathroom against the party wall side and basically the opposite side of the existing soil pipe. I have attached drawings showing I have 5.5m to reach the external side of the house and another 5 m to reach the existing upstair bathroom soil and vent pipe.
Would this be possible? I have an old wood flooring system that should allow having some fall inside and concrete outside which can easily break and make a channel for the pipe.
Please advise on your experience.
Thanks
Not sure if this is the right place to post it
I was thinking to add a new bathroom against the party wall side and basically the opposite side of the existing soil pipe. I have attached drawings showing I have 5.5m to reach the external side of the house and another 5 m to reach the existing upstair bathroom soil and vent pipe.
Would this be possible? I have an old wood flooring system that should allow having some fall inside and concrete outside which can easily break and make a channel for the pipe.
Please advise on your experience.
Thanks
