New floorplan opinions

Joined
21 Jan 2025
Messages
17
Reaction score
2
Country
United Kingdom
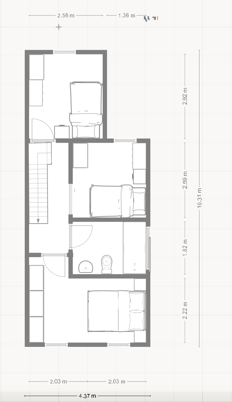
We are trying to look into options of turning our two bed Victorian terrace into to a three bed for our growing children. It would be great to have any thoughts or advice around changing the floorplan from the first to the second below where we are thinking to take some space from bedroom 1 and 2 to add in the bathroom in this area. We are end of terrace with the end side being the opposite side of the house to the staircase. We would want to add a window above the bath, this is the external wall so hope to know if this is possible. Many thanks for any thoughts.
 

Attachments

  • IMG_3769.png
    IMG_3769.png
    168.2 KB · Views: 73
  • Screenshot 2025-03-02 at 09.32.39.png
    Screenshot 2025-03-02 at 09.32.39.png
    124.7 KB · Views: 76
Not impossible, but with moving the bathroom you will have some underground works that will be needed for your drains.
 
The sliding door isn't ideal. They do save space, but most people who get them usually find out why most people don't have them! They usually leave gaps at the edge when closed, and you can't creep to the loo in the night silently after dragging the thing along its runners. I do see why it's there, but could you move the doorway further back, away from the bed and have it swing into the room?

I'd try playing games with swapping the new smaller bedroom and bathroom around, see what gives the best all round compromise. If the existing downstairs bathroom is at the back then this may be easier for plumbing. You don't need to be a slave to easy plumbing, but sometimes it can dictate layout, especially waste pipes as gravity only goes downwards. Also check what room measurements you're going to end up with and compare against existing rooms to see how reasonable it feels. It will probably be OK though.

We have a bathroom with the bath under the window. It's not good, you have to stand in the bath to open it. I caught my shorter other half standing on the edge of the bath to reach, had to tell her I'm not pushing her round in a wheelchair after she falls off. Best avoided, but design is always a compromise. If you're going to do it then get a window frame with the opening section and handle at the bottom edge, not near the top as ours is.

Is a loft conversion ever going to be an option? If so then think about it now, as that may involve some changes on this floor to accommodate the stairs.
 
Thanks for the considerations, we don’t think we have the budget for a lift conversation unfortunately.
 
I don't mean necessarily now - if you think it ever could happen then ensure you're not preventing it or giving yourself a load of extra work later.

Chances are the new stairs could go over the top of your existing stairs anyway, provided there's enough headroom. At worst, you may need the stairs and hall to intrude into Bedroom 1 a little to move the new stairs further that way, therefore increasing the headroom between the two lots of stairs.

If so then the wall to Bedroom 2 and the bathroom may leave the hallway a little narrow.
 
The existing bed1 to bed 2 wall is probably load bearing.

I think the loft would be the way to go.
 
Only my opinion, and sorry if it sounds negative, but as I've said in one of your previous posts on this matter - I'm afraid you may be putting too much thought and effort into creating a non-ideal solution, that could end up losing you money on your house.
Your solution here, would end up moving a structural wall and creating three rather poorly sized bedrooms, with a cramped bathroom.
You've said, this is to separate your kids rooms.
I would consider temporarily partitioning off the front bedroom. It's something the kids could live with, it would be cheap and easily reversible; it would also give you time/money to look for a more suitable solution, be that a loft conversion, or even a move to another house.
 

If you need to find a tradesperson to get your job done, please try our local search below, or if you are doing it yourself you can find suppliers local to you.

Select the supplier or trade you require, enter your location to begin your search.


Are you a trade or supplier? You can create your listing free at DIYnot Local

 
Back
Top