Hi,
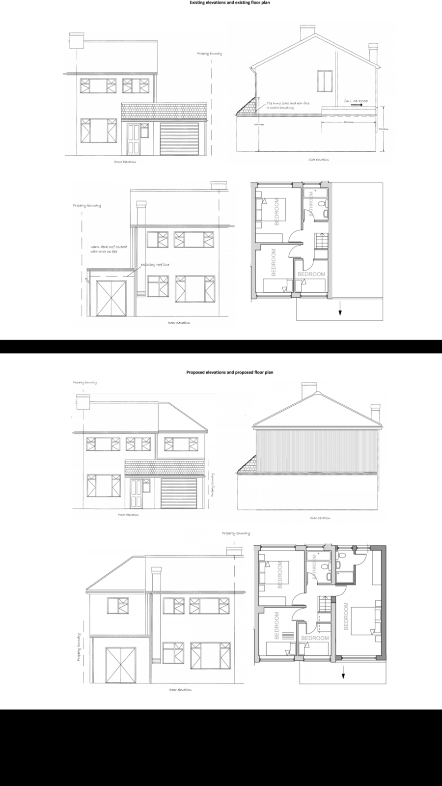
We had a meeting with the council today about extending our 3 bed semi detached. Basically adding a bedroom and ensuite onto the existing garage and kitchen that are positioned on the side of the property.
The reason for the pre application was because we need to be able to build to the boundary on the side to have enough space. The planning officer was confident if we stepped the front in or used a catslide roof with dormer we would avoid the terracing problem.
We are meeting with an architect next week but wanted to know what people thought of the catslide roof idea. With the catslide we could probably build nearer to the front of the house with possibly stepping in 1.5m.
My concern is where you lose headroom , is it just at the front by the dormer?
I have attached the original plans I did for the preapp.
Thanks everyone.
We had a meeting with the council today about extending our 3 bed semi detached. Basically adding a bedroom and ensuite onto the existing garage and kitchen that are positioned on the side of the property.
The reason for the pre application was because we need to be able to build to the boundary on the side to have enough space. The planning officer was confident if we stepped the front in or used a catslide roof with dormer we would avoid the terracing problem.
We are meeting with an architect next week but wanted to know what people thought of the catslide roof idea. With the catslide we could probably build nearer to the front of the house with possibly stepping in 1.5m.
My concern is where you lose headroom , is it just at the front by the dormer?
I have attached the original plans I did for the preapp.
Thanks everyone.
