Hello All,
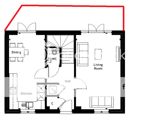
I have just purchased a new build property and I am interested in the potential of building a single story extension off the kitchen, however the fence boundary is on an angle. (See images)
Would it be possible to build an extension with an angled wall to fit with the boundary fence angle like the red outline in the first image?
Many thanks in advance,
Mark
I have just purchased a new build property and I am interested in the potential of building a single story extension off the kitchen, however the fence boundary is on an angle. (See images)
Would it be possible to build an extension with an angled wall to fit with the boundary fence angle like the red outline in the first image?
Many thanks in advance,
Mark
