- Joined
- 7 Dec 2023
- Messages
- 15
- Reaction score
- 0
- Country

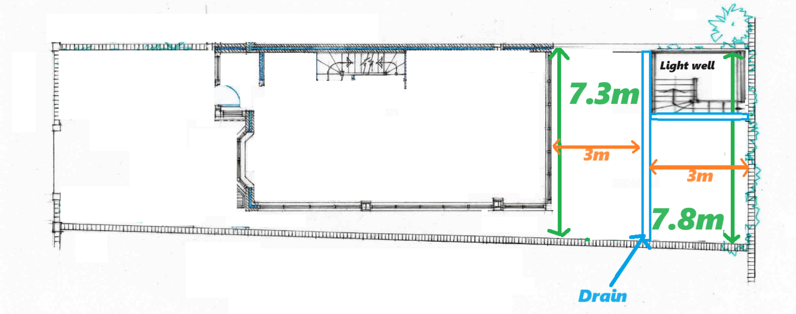
Hi, everyone! I'm seeking your views & tips to drain a concrete slab. while keeping buildup low.
It’s a concrete deck/slab constructed using a metal deck, which will act as a roof/lid over the basement. On top of the concrete deck, will be a paved garden area.
Key points:
Thanks for any advice and tips; I really appreciate it!
It’s a concrete deck/slab constructed using a metal deck, which will act as a roof/lid over the basement. On top of the concrete deck, will be a paved garden area.
Key points:
- The floor finish will be tiles on pedestals.
- Drains will be concealed under the tiles, allowing us to add as many drains as needed.
- Waterproofing specifications are handled by others.
Thanks for any advice and tips; I really appreciate it!