- Joined
- 7 Dec 2023
- Messages
- 15
- Reaction score
- 0
- Country

Hi, everyone!
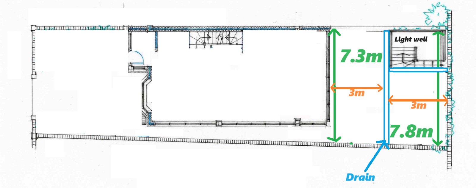
I haven't had much experience tiling on pedestals, but I'mhelping out a buddy. I've seen lots of pictures online showing tiling onpedestals in a nice square area, not a garden that tapers to the end. How wouldyou tackle this?
We are also limited on the buildup height; the slab is a concrete deck, and we're planning a 1:60 slope on the screed under the tiles.What’s the minimum projection height you've worked with on a pedestal self leveling system?
The channel drain will be fitted below the tiles as shown in the picture. Ifyou have any suggestions to improve the drainage design, ie adding more drains im able to as drain ishidden below the tiles. I need to take away water quickly to prevent anyseepage down to the basement level.
Thanks!
I haven't had much experience tiling on pedestals, but I'mhelping out a buddy. I've seen lots of pictures online showing tiling onpedestals in a nice square area, not a garden that tapers to the end. How wouldyou tackle this?
We are also limited on the buildup height; the slab is a concrete deck, and we're planning a 1:60 slope on the screed under the tiles.What’s the minimum projection height you've worked with on a pedestal self leveling system?
The channel drain will be fitted below the tiles as shown in the picture. Ifyou have any suggestions to improve the drainage design, ie adding more drains im able to as drain ishidden below the tiles. I need to take away water quickly to prevent anyseepage down to the basement level.
Thanks!
Attachments
Last edited: