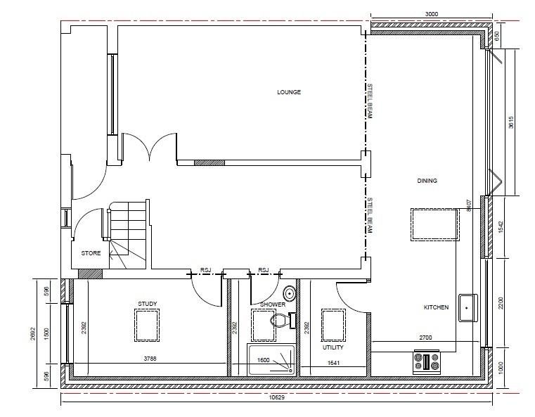
We are currently in the process of building a rear extension. I have sourced and almost paid for a set of 3.6 m bi-folding doors to be placed at the rear wall. The total length of the outside wall is approx. 9 m.
Our architect has assured me there are no issues about this. However another architect has informed me that I cannot have a bifolding door in width greater than 25% of the rear wall in Ealing, London.
Is this really the case? I cannot find anything useful online. Is there anyway around this?
Our architect has assured me there are no issues about this. However another architect has informed me that I cannot have a bifolding door in width greater than 25% of the rear wall in Ealing, London.
Is this really the case? I cannot find anything useful online. Is there anyway around this?
