I am trying to understand how extending to the rear of my housewould affect the condensing boiler flue.
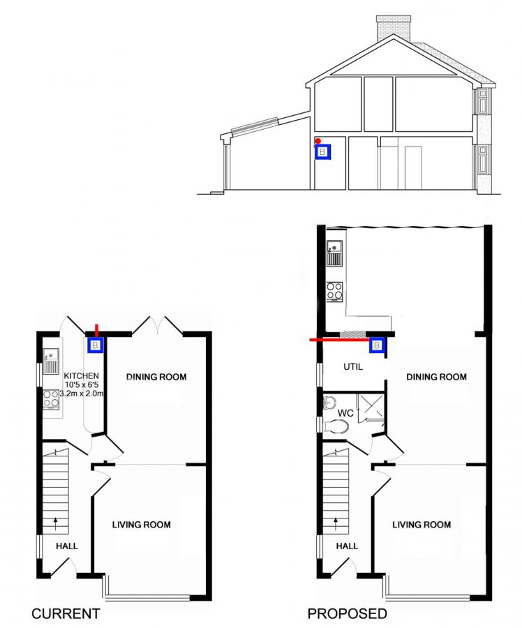
I have a Viessmann Vitodens 100W for reference, that was fitted around 4 years ago. The boiler sits on the wall between the kitchen and the dining room. The flue is exiting through the rear wall. Quick drawing attached.
I am hoping to keep costs down and leave the boiler in the same place, while extending the flue to exit on the left flank wall (red line), as in the right side of the drawing.
Q1: does the boiler body need to be on an "external wall" ?
That lip of wall between the side window and the "old" rear wall is only 300-400mm long. From what regs stipulate you cannot have a flue closer than something like 600mm to an opening window. It is actually an awing window and only opens at the bottom, but that probably doesn't matter.
Q2: Can the flue be extended from its current position, 2m+ across the ceiling and exit the side wall? Could we use a plume deflector to direct gases upwards and comply without having to move the boiler?
Many thanks
I have a Viessmann Vitodens 100W for reference, that was fitted around 4 years ago. The boiler sits on the wall between the kitchen and the dining room. The flue is exiting through the rear wall. Quick drawing attached.
I am hoping to keep costs down and leave the boiler in the same place, while extending the flue to exit on the left flank wall (red line), as in the right side of the drawing.
Q1: does the boiler body need to be on an "external wall" ?
That lip of wall between the side window and the "old" rear wall is only 300-400mm long. From what regs stipulate you cannot have a flue closer than something like 600mm to an opening window. It is actually an awing window and only opens at the bottom, but that probably doesn't matter.
Q2: Can the flue be extended from its current position, 2m+ across the ceiling and exit the side wall? Could we use a plume deflector to direct gases upwards and comply without having to move the boiler?
Many thanks
