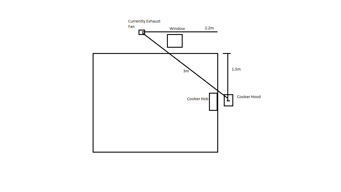
We've got cooker hob on right wall (if facing west) and only way to vent outside is via current extractor fan. The shortest distance between hob and fan is diagonal at 3m.
1) Flat on building. Can't drill another another vent hole.
2) Concrete walls all around.
3) Can mount ducting kit on ceiling.
So what are the options if there are any? or forget about hood and upgrade extractor fan? Pls go slow as new in DIY but can follow instructions
Thanks.
1) Flat on building. Can't drill another another vent hole.
2) Concrete walls all around.
3) Can mount ducting kit on ceiling.
So what are the options if there are any? or forget about hood and upgrade extractor fan? Pls go slow as new in DIY but can follow instructions
Thanks.
