Thank you for a prompt reply.
screen grab from the structural chap.
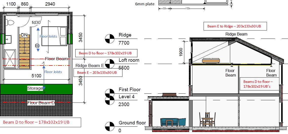
Understand the ridge beam steel, as it is needed because the dormer hangs from it.
Why do I need another steel to support on the RHS ? If it is for supporting the rafters, why can't we make use of whatever is supporting the rafters currently? Because presumably your existing loft has various ties or struts that currently hold up a purlin(?), to be able to remove these struts/ties etc and be able to open up the loft space a steel beam is required to replace those existing supports.
This is the dormer design once completed, sorry, not got the architects piccies handy. Again from the structural chap.
The floor beam doesn't align with the stairs. You need to find out because at the moment it looks like the beam will get in the way when you walk up the stairs? And if it is for the floor joists, why can't we support them on the current brick walls? Are the brick walls structural - do they go all the way down to the ground? Do they have a foundation underneath them? If you don't know then your designer should. Do you actually have a designer? Or are you just using an SE? I've never seen such amatuerish draiwngs from an SE.
Unfortunately there is no mid level graphic, just the ground floor and the dormer, and not the 1st floor showing the walls.