Extension layout opinons

Joined
26 Aug 2007
Messages
526
Reaction score
8
Location
London
Country
United Kingdom
Hi All.

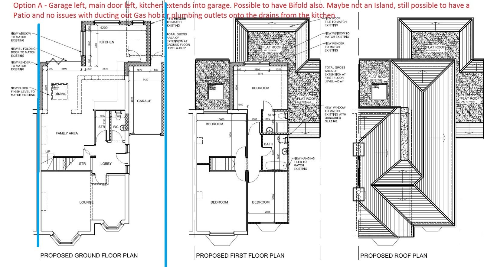
I am looking at the option of 3 different layouts for my proposed extension, I would like the views of others on this forums.

I am looking at the kitchen layout and how it could work.

Thanks in advance.
189_full.JPG


36_GA.JPG


219_LL.JPG
 
Can’t see all the detail (others will be able to read your plans like a book) but identify existing plumbing drainage (electrics) and try to work out how to minimise additional works by using existing openings, if possible. Use the whole of the front of the house for the kitchen. Big kitchens will add value, and maybe this will also reduce the need to build into garage (all additional works and therefore more cost) but also provide light to the dining area that is effectively set back in your plans.

Just my opinions

Blup
 

If you need to find a tradesperson to get your job done, please try our local search below, or if you are doing it yourself you can find suppliers local to you.

Select the supplier or trade you require, enter your location to begin your search.


Are you a trade or supplier? You can create your listing free at DIYnot Local

 
Back
Top