- Joined
- 29 Jan 2012
- Messages
- 10
- Reaction score
- 0
- Country

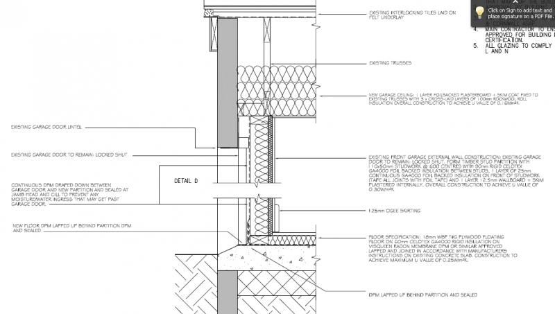
I'm in the middle of converting my attached garage, my plan is to use the back 2 thirds as a liveable room - this now has a door into the main house. The front third is going to be used as a store room, it currently has the garage door still in place.
I have put in all the internal walls, but am now thinking I should do away with the garage door and insulate the store room to make it 'liveable' under building regs.
So, two ideas; firstly leave the door in place, seal it and install insulation and stud behind it. Meaining it still looks like a garage from the outside but has a fully insulated wall. This is the easier option, but I think the BCO will prob say no on fire regs grounds.
The second option is to remove the door and build a wooden framed wall with cladding on the outside and a door, again insulated etc. If I go for this option, do you think I could put the sole plate straight onto the existing concrete slab, rather than building a dwarf wall? I want to leave it as much as possible looking like a garge and also want it to be easy to reconvert to a garage.
Final question, the BCO has asked that I put in 75mm of floor insulation, does anyone know of a product with a similar u value to Kingspan but is thinner?
Cheers
I have put in all the internal walls, but am now thinking I should do away with the garage door and insulate the store room to make it 'liveable' under building regs.
So, two ideas; firstly leave the door in place, seal it and install insulation and stud behind it. Meaining it still looks like a garage from the outside but has a fully insulated wall. This is the easier option, but I think the BCO will prob say no on fire regs grounds.
The second option is to remove the door and build a wooden framed wall with cladding on the outside and a door, again insulated etc. If I go for this option, do you think I could put the sole plate straight onto the existing concrete slab, rather than building a dwarf wall? I want to leave it as much as possible looking like a garge and also want it to be easy to reconvert to a garage.
Final question, the BCO has asked that I put in 75mm of floor insulation, does anyone know of a product with a similar u value to Kingspan but is thinner?
Cheers