Hi all
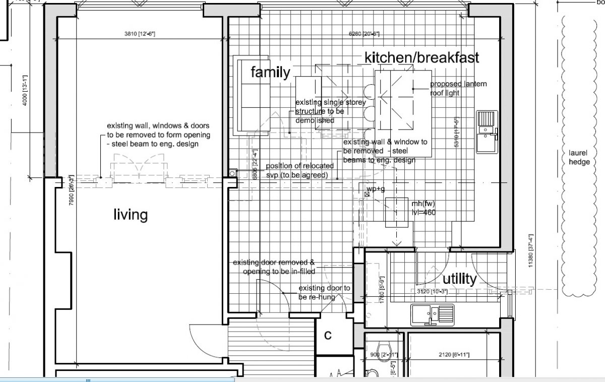
I am putting a rear extension on the back of a typical 1930s detached house. The extension goes out 4m, and extends beyond the side wall of the house on the kitchen side by about 3m. It has a flat roof.
The kitchen part of the extension is very light: I've got 4.5m of bifolds and a 1.5x.2.2m roof lantern in that room. The living room part, however, is very dark. It is about 8m long, and the only source of light is a 2.3m wide bifold at the end.
Ideally I would put in a roof lantern in the living room to help, but it is already too late as the roof timbers have been put in place and the felt goes on today. The builder did say that if I can find a flat rooflight that is about 300mm wide by say 1500mm long he could fit two of them between the joists, but I can't seem to find a product that would be narrow enough.
The other option is to put in glass at the top of the stud wall that divides the kitchen and living room parts of the extension. Currently, we just have the studwork in place. I think a series of smallish glazed panels along that wall between the studs and above the noggings (which are just above head-height) would get lots of extra light in, and could look quite good. I have had a look and having double-glazing units made up at this size would be cheap - under £20 each, so for all four it would be under £100.
My question is - how do I actually fit them? I want a nice modern finish, with a sort-of frameless appearance. And are there any building regs (or, god forbid, planning permission) issues I need to consider?
Thanks
I am putting a rear extension on the back of a typical 1930s detached house. The extension goes out 4m, and extends beyond the side wall of the house on the kitchen side by about 3m. It has a flat roof.
The kitchen part of the extension is very light: I've got 4.5m of bifolds and a 1.5x.2.2m roof lantern in that room. The living room part, however, is very dark. It is about 8m long, and the only source of light is a 2.3m wide bifold at the end.
Ideally I would put in a roof lantern in the living room to help, but it is already too late as the roof timbers have been put in place and the felt goes on today. The builder did say that if I can find a flat rooflight that is about 300mm wide by say 1500mm long he could fit two of them between the joists, but I can't seem to find a product that would be narrow enough.
The other option is to put in glass at the top of the stud wall that divides the kitchen and living room parts of the extension. Currently, we just have the studwork in place. I think a series of smallish glazed panels along that wall between the studs and above the noggings (which are just above head-height) would get lots of extra light in, and could look quite good. I have had a look and having double-glazing units made up at this size would be cheap - under £20 each, so for all four it would be under £100.
My question is - how do I actually fit them? I want a nice modern finish, with a sort-of frameless appearance. And are there any building regs (or, god forbid, planning permission) issues I need to consider?
Thanks
