Hi All.
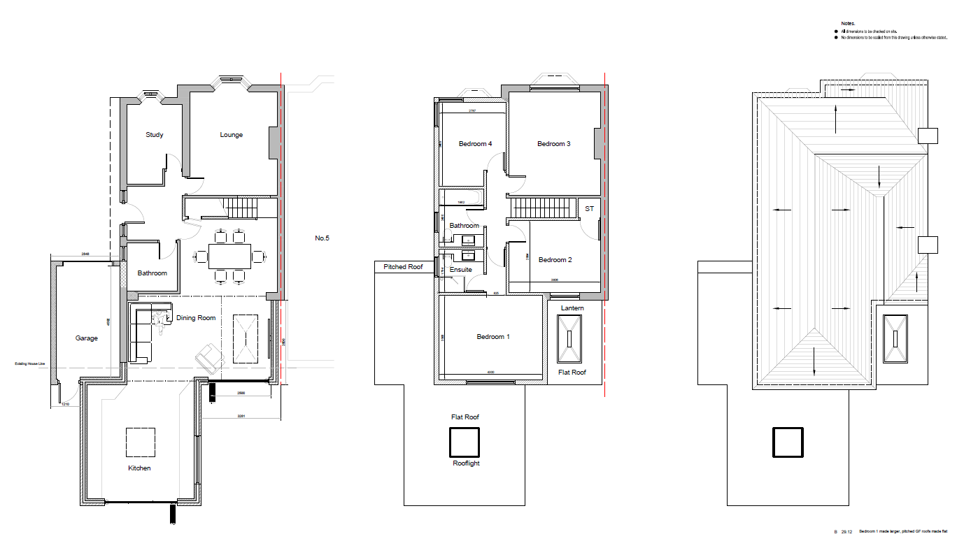
I am putting together a design, and I like to believe there is a way to make this flat roof look better. Any ideas please.
Thanks in advance.
I am putting together a design, and I like to believe there is a way to make this flat roof look better. Any ideas please.
Thanks in advance.
