Hi
We're having a conservatory replaced with an extension this year, and wish to build a first floor extension as part of the plans.
I've had a good look at the planning portal site, regards permitted development, however the council will not answer my "do I need planning permission?" question without relieving me of £86 first.
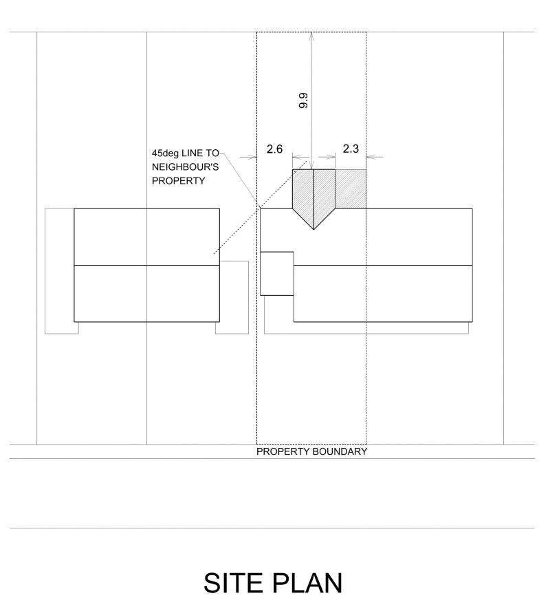
Can anyone please offer advice? I've attached the plans below. Many thanks.
We're having a conservatory replaced with an extension this year, and wish to build a first floor extension as part of the plans.
I've had a good look at the planning portal site, regards permitted development, however the council will not answer my "do I need planning permission?" question without relieving me of £86 first.
Can anyone please offer advice? I've attached the plans below. Many thanks.
