- Joined
- 21 Nov 2019
- Messages
- 23
- Reaction score
- 0
- Country

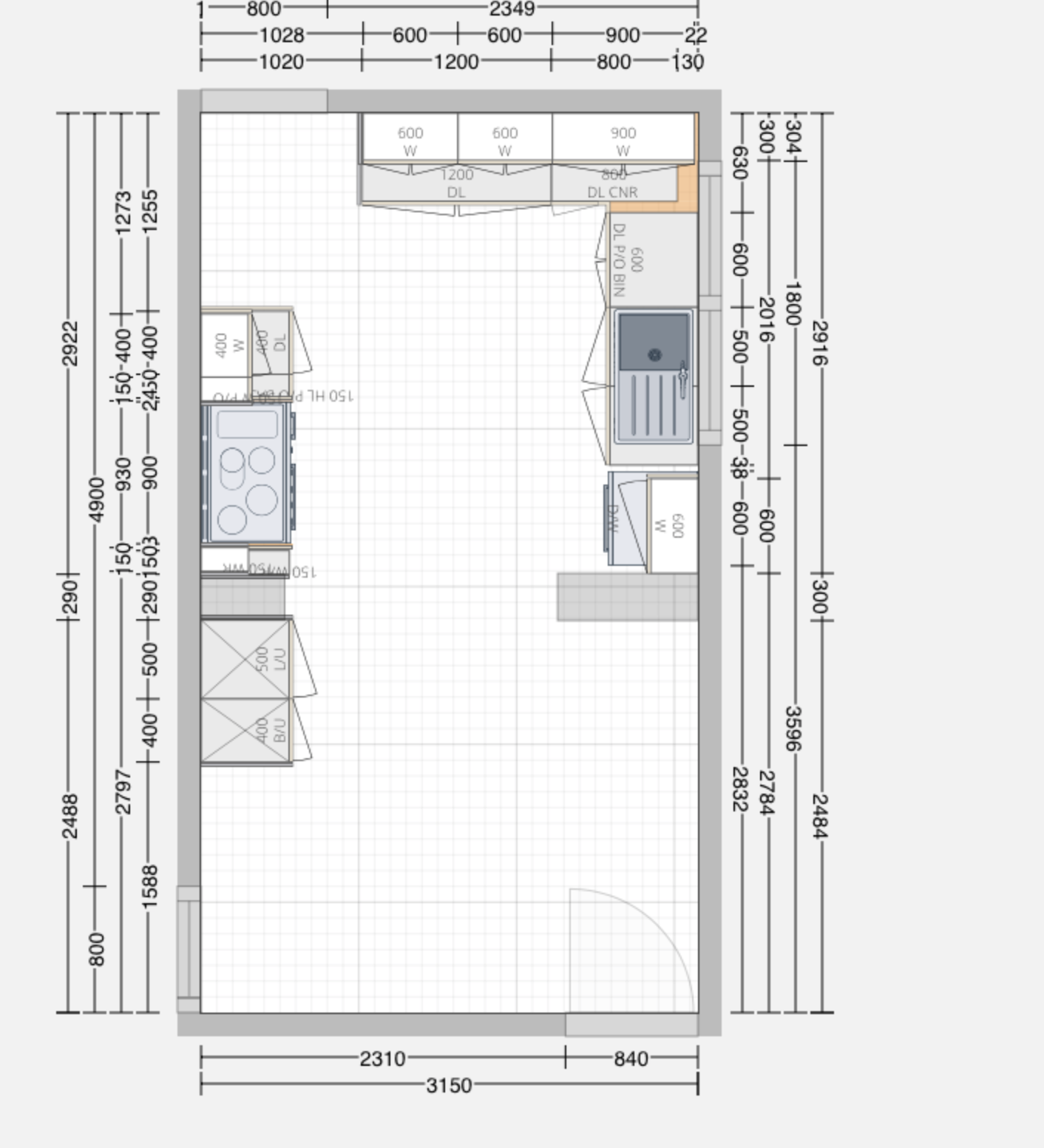
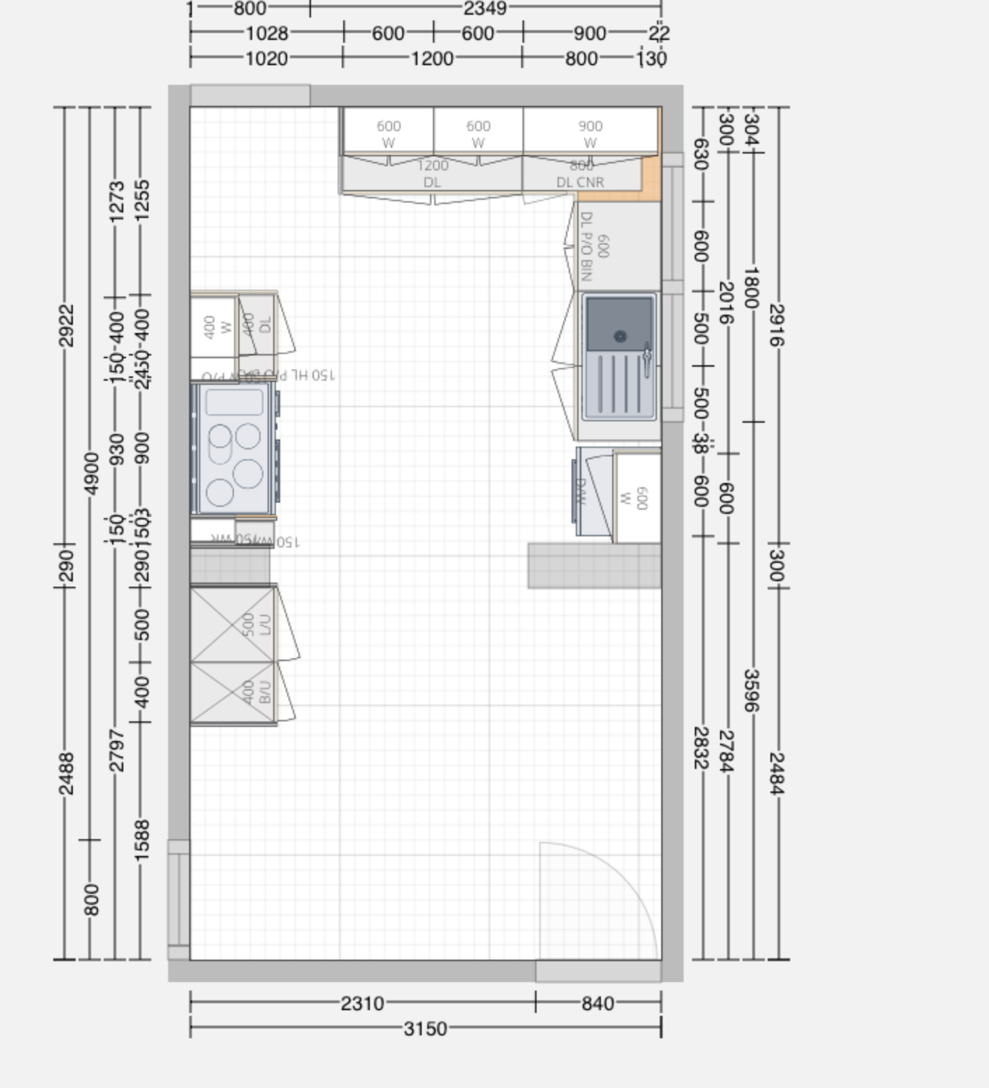
I am putting in a kitchen but don't know which is best next to the corner unit the 500mm base unit with the sink unit and the 600 bin unit with dishwasher at the end or the 600mm bin unit then sink unit and 500 mm unit. which would be better normal base unit or bin unit next to corner unit (its a 800mm blind corner unit)