Hi all,
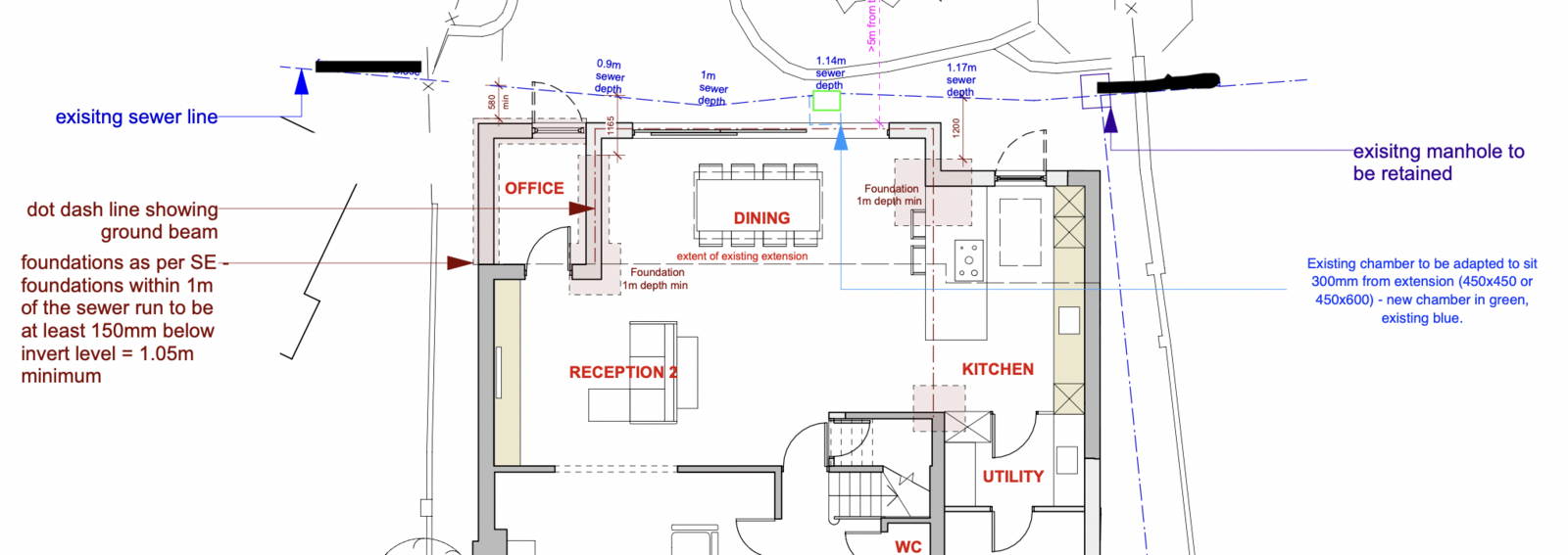
I am in talks with the water authority re the position of a public sewer manhole at the rear of a proposed single story extension. As it stands, the extension is planned to be built right up to the chamber cover. The water authority have agreed that we can make adaptations to this chamber / site a new chamber at this site, so long as it sits 300mm from the proposed extension. The foundations are not an issue as these are cantilevered well away from the sewer line.
The existing sewer beneath the chamber cover is actually off-centred (see rough sketch), and sits 350mm from the extension. Is there a way to modify a chamber, and offset it in the other direction, so that the access sits 300mm or more from the extension?
The alternative solution to this is to decommission this chamber and then construct a new one elsewhere on the line, which we could do but would involve much more work.
I hope I've made my self clear.
Thank you
I am in talks with the water authority re the position of a public sewer manhole at the rear of a proposed single story extension. As it stands, the extension is planned to be built right up to the chamber cover. The water authority have agreed that we can make adaptations to this chamber / site a new chamber at this site, so long as it sits 300mm from the proposed extension. The foundations are not an issue as these are cantilevered well away from the sewer line.
The existing sewer beneath the chamber cover is actually off-centred (see rough sketch), and sits 350mm from the extension. Is there a way to modify a chamber, and offset it in the other direction, so that the access sits 300mm or more from the extension?
The alternative solution to this is to decommission this chamber and then construct a new one elsewhere on the line, which we could do but would involve much more work.
I hope I've made my self clear.
Thank you
