I get the impression though that OT may have had its day, particularly in the UK. New domestic systems now have to be zoned [living areas / sleeping areas] Apart from the difficulty of having two OT connections to terminate, it would be impossible for two OT thermostats requesting different water temperatures to get that from the same boiler anyway!
.
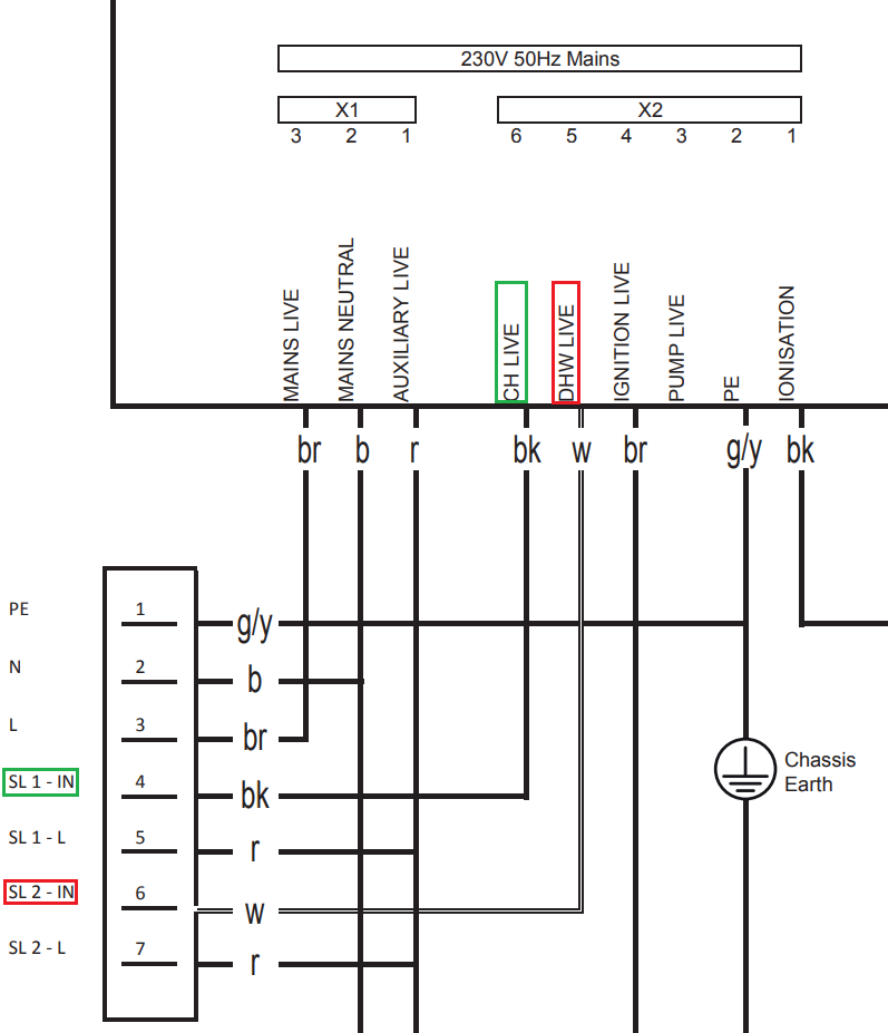
don't the newer Intergas boliers have 2 independent sets of OT connections, not sure how they work together though.
