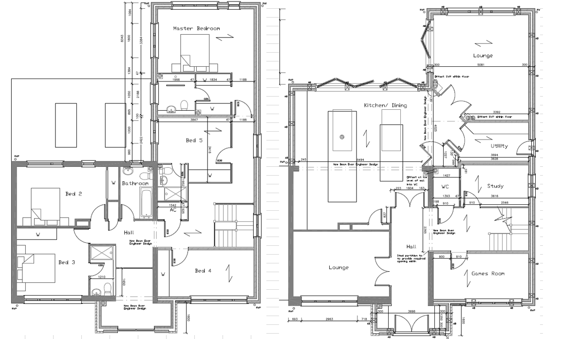
So we are having a new heating system fitted in our house after weve had a large extension. About the house Its a large double storey L Shape with a single storey downstairs extension making the rest of the house a box(Will load a pic on so you can see its shape. The Utility room where the boiler etc will be is at the side of the house as per drawing. We are having a very large Stove fitted in the back room of the house and are planning on having this with a back boiler connected into the heating system. The plumber has suggested using a Thermal store and connecting a Gas boiler also to the heat store. The plan for the house will be that the kitchen/Dinner, Hallway, Utility Room and downstairs Bathroom will all have wet underfloor heating. The remaining rooms will have radiators. Speaking with the Plumber we said we would like a smart system etc with Smart Trv`s. I asked would the heating be in Zones ie Upstairs and Downstairs as a zone each and then the underfloor heating would also be its on Zone. He said using smart Trv`s in each room wouldn't have much matter about having an upstairs and downstairs zones and he would sooner break it into sides of the house? as all the heating pipework would run in the upstairs floors anyway and the TRV`s would give more control than Zones of Up and Down
Does his advice sound ok or should I get another heating engineer to have a look?
Does his advice sound ok or should I get another heating engineer to have a look?
