Open Plan and Part B

Joined
6 Sep 2015
Messages
2
Reaction score
0
Country
United Kingdom
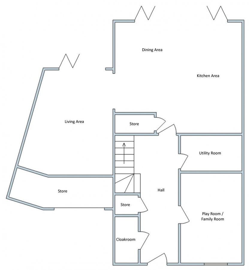
Hi guys. Apologies I'm new to the forum so please forgive any mistakes in my first post. I'm hoping to embark on a renovation soon and wanted some advice on building regs and means of escape (before contacting the council's dept). The proposed plans would create an open plan room at the top by converting part of the garage on the left and knocking through to the house. As this would join a room rather than to the hallway, I was wondering how part b would work? The bifold doors I've sourced say not to be used as a means of escape. Does this mean the open plan area means of escape will be the door to the hallway (even though given they're doors they could be used to gain ac ess to the garden)? Would this open plan area be considered one room and not therefore a room within a room?

Any help whatsoever will be much appreciated!
 

Attachments

  • Screenshot_2015-09-06-14-13-20_1.jpg
    Screenshot_2015-09-06-14-13-20_1.jpg
    48.1 KB · Views: 155
Have those doors got a key operated lock so the supplier is stating not to use them for escape purposes?

It won't matter in terms of building regs anyway, and they will be an escape door from that room.
 
As the door manufacturer has no knowledge of your layout, the escape restriction must be intrinsic to the doors, and is probably related to the lock or handle.

Is the back garden open at the side of the building, as escape into an enclosed outside area usually isn't accepted?

If you need another exit then a door from the living room to the new store, and thus to the front outside, may be acceptable.
 
Hi thanks for your replies so far.

The garden opens up to a rear access road via a gate but not to the side. I'd previously thought of an access door to the store before, but more for convinience, never as a fire escape route. This would open out to the front of the property via a garage door that can be opened from inside. Although I'd discounted it previously due to security.

Does anyone have an opinion whether the opened up area would be considered a single room and thus benefit from the door to the hall?

Thanks again.
 

If you need to find a tradesperson to get your job done, please try our local search below, or if you are doing it yourself you can find suppliers local to you.

Select the supplier or trade you require, enter your location to begin your search.


Are you a trade or supplier? You can create your listing free at DIYnot Local

 
Back
Top