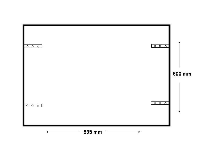
I need to put up a shelf as shown.
I hope the 4 brackets shown are in the right place. There is no wall above and below the diagram only on the left and right side.
I would like it to support upto 30Kg, perhaps a little more?
I was intending on using 18mm thick MDF,
B&Q medium weight self drill plasterboard 1.5" screws ( http://www.diy.com/diy/jsp/bq/nav.j...72210}/specificationsProductType=nylon_plugs)
and 4 x heavy duty 'L' shaped brackets, not sure whether to use:
80 x 80 x 10mm (8 screw holes in total)
100 x 100 x 20mm (6 screw holes in total)
120 x 120 x 20mm (8 screw holes in total)
Does this all sound feasible?
I hope the 4 brackets shown are in the right place. There is no wall above and below the diagram only on the left and right side.
I would like it to support upto 30Kg, perhaps a little more?
I was intending on using 18mm thick MDF,
B&Q medium weight self drill plasterboard 1.5" screws ( http://www.diy.com/diy/jsp/bq/nav.j...72210}/specificationsProductType=nylon_plugs)
and 4 x heavy duty 'L' shaped brackets, not sure whether to use:
80 x 80 x 10mm (8 screw holes in total)
100 x 100 x 20mm (6 screw holes in total)
120 x 120 x 20mm (8 screw holes in total)
Does this all sound feasible?
