- Joined
- 15 Jan 2020
- Messages
- 4
- Reaction score
- 0
- Country

Hi,
New to the forum, hi all.
Just wondered if it's possible to link an old but characterful outbuilding to the rear of an extended Victorian house that has, for a bunch of reasons, never been connected to the house about 1m away?
We think a previous owner took the roof and one wall away from a 1900-1920 age outbuilding while finishing off a 2 storey extension but enough of it has been left intact to make it feasible to restore.
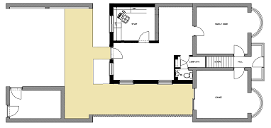
This picture shows a parking area and garage (white part on the left side) all of which sits on a massive concrete slab, and next to that is a decking area (shaded). The decking north-south - the strip behind the garage leading to the back door- covers the footings and I can see supports for a suspended wooden floor if I lift the decking.
The east-west strip of decking running to the back of the lounge doesn't have footings.
If I go back in time (not very far!) I can see maps that show the plot and the north and south walls bordered a massive building in two sections - the concrete floored bit (white in the pic above) was a treble garage with a sloping roof spanning the full width of the plot, and behind that (decking area) was a solid building with a flat roof. The flat roofed section and the modern extension are separated by a gap no bigger than a garden gate.
I don't think curtilage would be an issue - restoring the flat roofed building between garage and house wouldn't even touch 40% of the curtilage. This snap from the 80s shows the two outbuildings as one big square.
What is the likelihood of a council approving restoration of that flat roofed bit as an orangery and connecting it to the house? What is feasible here?
I have asked a few conservatory companies, they all seem to think it'd be dead simple if only there wasn't a garden gate sized gap between the walls that are still there, and the back wall of the extension.
Thanks in advance.
New to the forum, hi all.
Just wondered if it's possible to link an old but characterful outbuilding to the rear of an extended Victorian house that has, for a bunch of reasons, never been connected to the house about 1m away?
We think a previous owner took the roof and one wall away from a 1900-1920 age outbuilding while finishing off a 2 storey extension but enough of it has been left intact to make it feasible to restore.
This picture shows a parking area and garage (white part on the left side) all of which sits on a massive concrete slab, and next to that is a decking area (shaded). The decking north-south - the strip behind the garage leading to the back door- covers the footings and I can see supports for a suspended wooden floor if I lift the decking.
The east-west strip of decking running to the back of the lounge doesn't have footings.
If I go back in time (not very far!) I can see maps that show the plot and the north and south walls bordered a massive building in two sections - the concrete floored bit (white in the pic above) was a treble garage with a sloping roof spanning the full width of the plot, and behind that (decking area) was a solid building with a flat roof. The flat roofed section and the modern extension are separated by a gap no bigger than a garden gate.
I don't think curtilage would be an issue - restoring the flat roofed building between garage and house wouldn't even touch 40% of the curtilage. This snap from the 80s shows the two outbuildings as one big square.
What is the likelihood of a council approving restoration of that flat roofed bit as an orangery and connecting it to the house? What is feasible here?
I have asked a few conservatory companies, they all seem to think it'd be dead simple if only there wasn't a garden gate sized gap between the walls that are still there, and the back wall of the extension.
Thanks in advance.