- Joined
- 29 Oct 2021
- Messages
- 12
- Reaction score
- 0
- Country

Hi
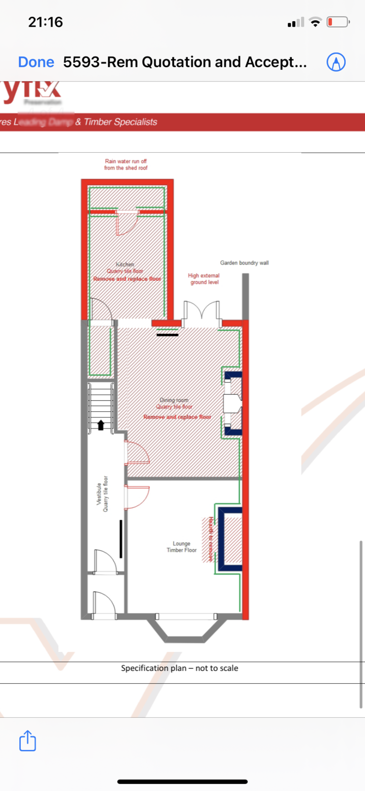
We are wanting to buy a property which just came back with a level 3 for damp in the home buyers report. The property is a Victorian terrace with solid floors.
There was minor evidence of damp when we viewed but we thought it was just condensation and ventilation issues as the property is left empty for several weeks at a time. Plus the window in the utility room has been removed and they dry clothes in there. Although there is also damp in the kitchen and dining area.
On instruction of the surveyor we paid for a specialist damp report from a company with very good reviews. The survey came back with £20k - £23k to inject a damp proof course and take up the old quarry tiles and replace flooring. Also opening up of the chimney breast.
They have also us to get a landscaper quote to reduce outside ground level which makes complete sense. However I cannot understand why the damp repairs quote is so expensive and whether the repairs are completely necessary.
Do you think these costs can be justified? How easy would it be to replaster and do new flooring ourselves? And then just ensure the property is sufficiently heated and ventilated.
Any help greatly appreciated!
See a couple of pics below…
We are wanting to buy a property which just came back with a level 3 for damp in the home buyers report. The property is a Victorian terrace with solid floors.
There was minor evidence of damp when we viewed but we thought it was just condensation and ventilation issues as the property is left empty for several weeks at a time. Plus the window in the utility room has been removed and they dry clothes in there. Although there is also damp in the kitchen and dining area.
On instruction of the surveyor we paid for a specialist damp report from a company with very good reviews. The survey came back with £20k - £23k to inject a damp proof course and take up the old quarry tiles and replace flooring. Also opening up of the chimney breast.
They have also us to get a landscaper quote to reduce outside ground level which makes complete sense. However I cannot understand why the damp repairs quote is so expensive and whether the repairs are completely necessary.
Do you think these costs can be justified? How easy would it be to replaster and do new flooring ourselves? And then just ensure the property is sufficiently heated and ventilated.
Any help greatly appreciated!
See a couple of pics below…