- Joined
- 26 Aug 2022
- Messages
- 33
- Reaction score
- 1
- Country

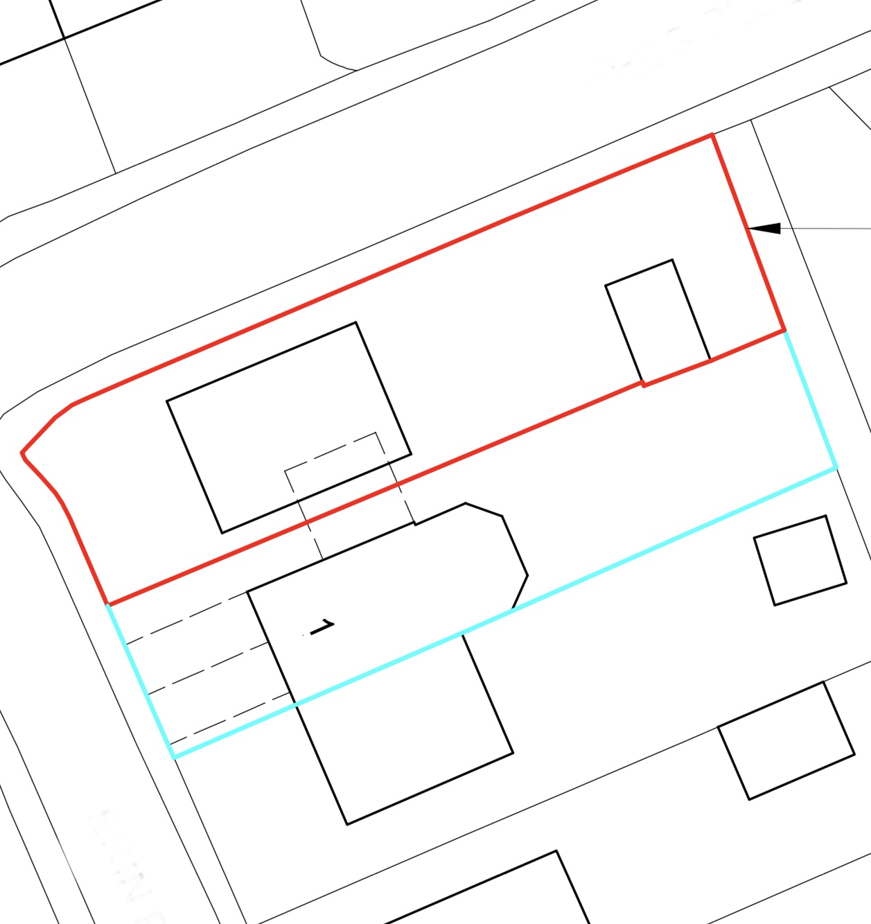
Hi there. We have a 1930’s semi corner plot and have been granted outline planning (all matters reserved) to
build a 4 bed detached house on the side of the plot, which will be worth around £400k
This will involve demolishing the side extension of
our house (housing the kitchen) and returning our house to its original footprint.
Having spoken to some land auctioneers I think that we could
get around 150k if we sell the land with planning permission, but would obviously need to spend money demolishing the side extension, landscaping and moving the kitchen back inside (20k?)
I am trying to decide if I am better off doing this or selling the
current house with planning to a developer/builder and having them do all the work.
*Current house as is with side extension worth circa £375k
*Current House taken back to original footprint on smaller plot circa £330k
How much do you think I could get selling the current house with planning?
I guess I will make less this way but more likely to find a buyer as if splitting plots may be difficult to sell current house due to proposed building works on side plot?
Any other things I should think about?
thanks
Jamie
build a 4 bed detached house on the side of the plot, which will be worth around £400k
This will involve demolishing the side extension of
our house (housing the kitchen) and returning our house to its original footprint.
Having spoken to some land auctioneers I think that we could
get around 150k if we sell the land with planning permission, but would obviously need to spend money demolishing the side extension, landscaping and moving the kitchen back inside (20k?)
I am trying to decide if I am better off doing this or selling the
current house with planning to a developer/builder and having them do all the work.
*Current house as is with side extension worth circa £375k
*Current House taken back to original footprint on smaller plot circa £330k
How much do you think I could get selling the current house with planning?
I guess I will make less this way but more likely to find a buyer as if splitting plots may be difficult to sell current house due to proposed building works on side plot?
Any other things I should think about?
thanks
Jamie