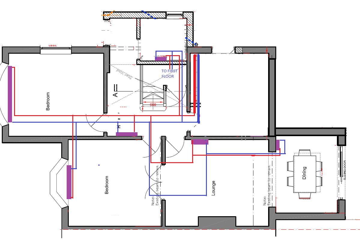
Hi, I've been slowly renovating my 1960s chalet bungalow and now want to move a radiator in my dining room. Whilst there is no flooring down i took the opportunity to map out the existing pipework. Would someone be kind enough to look at the attached diagrams and advise if anything else needs changing to make a more efficient system. Upstairs pipework is more or less inaccessible at the moment so looking at the groundfloor for the time being.
The change i mentioned is to put vertical radiators in the lounge and dining room, whilst moving the dining room rad from the outside wall to the internal wall, basically shortening the pipework
The boiler is located at the end of the thicker 22mm pipe, the rest is 15mm
Thanks
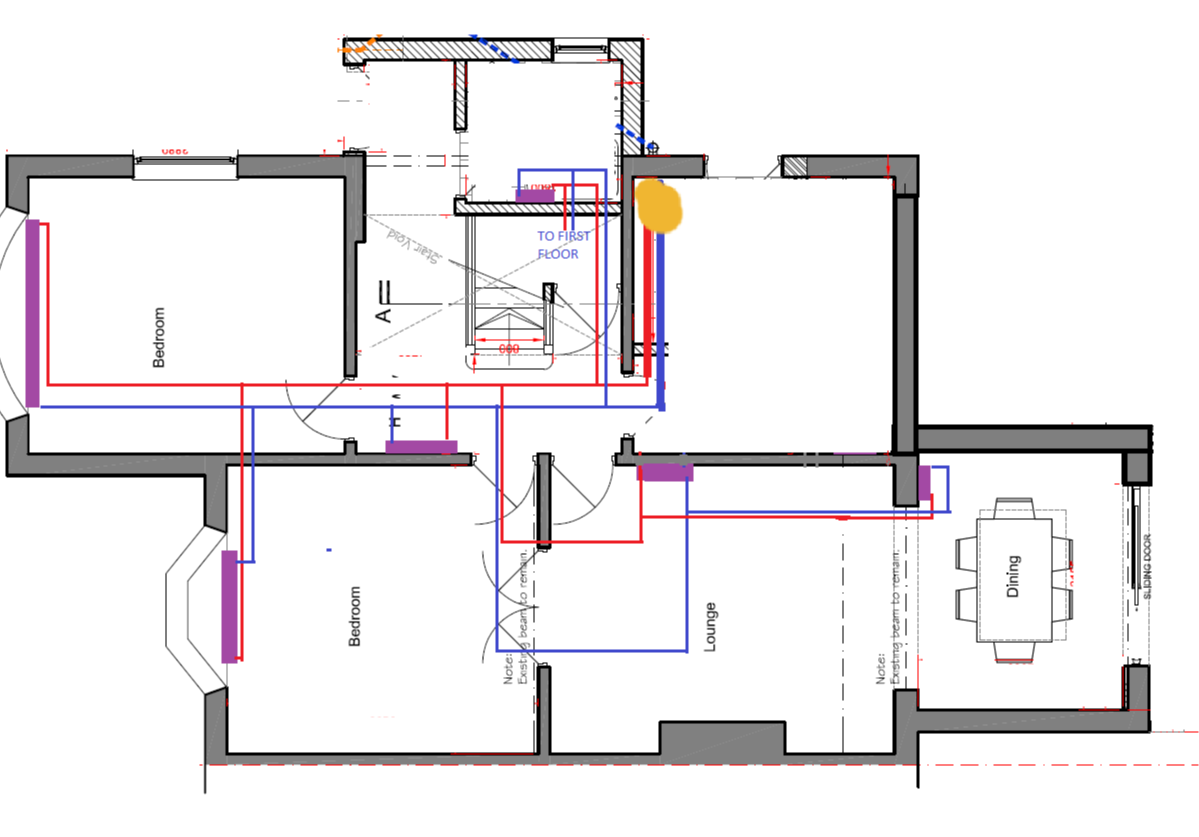
The change i mentioned is to put vertical radiators in the lounge and dining room, whilst moving the dining room rad from the outside wall to the internal wall, basically shortening the pipework
The boiler is located at the end of the thicker 22mm pipe, the rest is 15mm
Thanks
