Thanks all for the replies.
Done some measurements, and here are the results
i have done the test in 2 areas: Kitchen and Bathroom
Kitchen: ( no other sourches in use, only 1 tap)
Cold Tap flow rate: 7.2lt/min
Hot Tap flow rate: 6.6lt/min
Bathroom ( no other sources in use):
Cold: 10.9lt/min
Hot: 8.2lt /min
Bathroom ( Cold tap on in kitchen ):
Cold: 6.2lt/min
Hot: 4.4lt/min
Bathroom ( Hot tap on in kitchen ):
Cold: 7.7lt/min
Hot: 4.3lt/min
I think perhaps the tap in the bathroom is better than the one in the kitchen hence the slight difference in the flow rate.
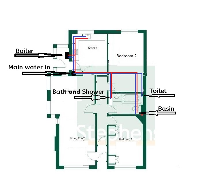
Attached is how the cold and hot water pipes run around at the moment in the bungalow.
So would love to know what you guys think will be the best setup for my property after extension to be able to run:
2 bathrooms
Kitchen with Sink
I want to be able to use shower whilst someone else might be washing their hand or the washing machine be running elsewhere. At the moment , we can't as the water pressure drops a lot in the shower.
Done some measurements, and here are the results
i have done the test in 2 areas: Kitchen and Bathroom
Kitchen: ( no other sourches in use, only 1 tap)
Cold Tap flow rate: 7.2lt/min
Hot Tap flow rate: 6.6lt/min
Bathroom ( no other sources in use):
Cold: 10.9lt/min
Hot: 8.2lt /min
Bathroom ( Cold tap on in kitchen ):
Cold: 6.2lt/min
Hot: 4.4lt/min
Bathroom ( Hot tap on in kitchen ):
Cold: 7.7lt/min
Hot: 4.3lt/min
I think perhaps the tap in the bathroom is better than the one in the kitchen hence the slight difference in the flow rate.
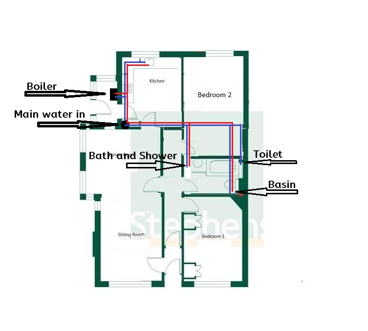
Attached is how the cold and hot water pipes run around at the moment in the bungalow.
So would love to know what you guys think will be the best setup for my property after extension to be able to run:
2 bathrooms
Kitchen with Sink
I want to be able to use shower whilst someone else might be washing their hand or the washing machine be running elsewhere. At the moment , we can't as the water pressure drops a lot in the shower.
