Hi all,
I'm looking for an idea of extension costs. I've heard various amounts per sqm, but it's never clear to me what that actually includes.
We are based in the South West near Bristol.
We're considering turning our 2 bed into a 3 bed + office (or 4th bedroom/box room depending on how you look at it) with an open plan kitchen diner, a downstairs bathroom and a utility room.
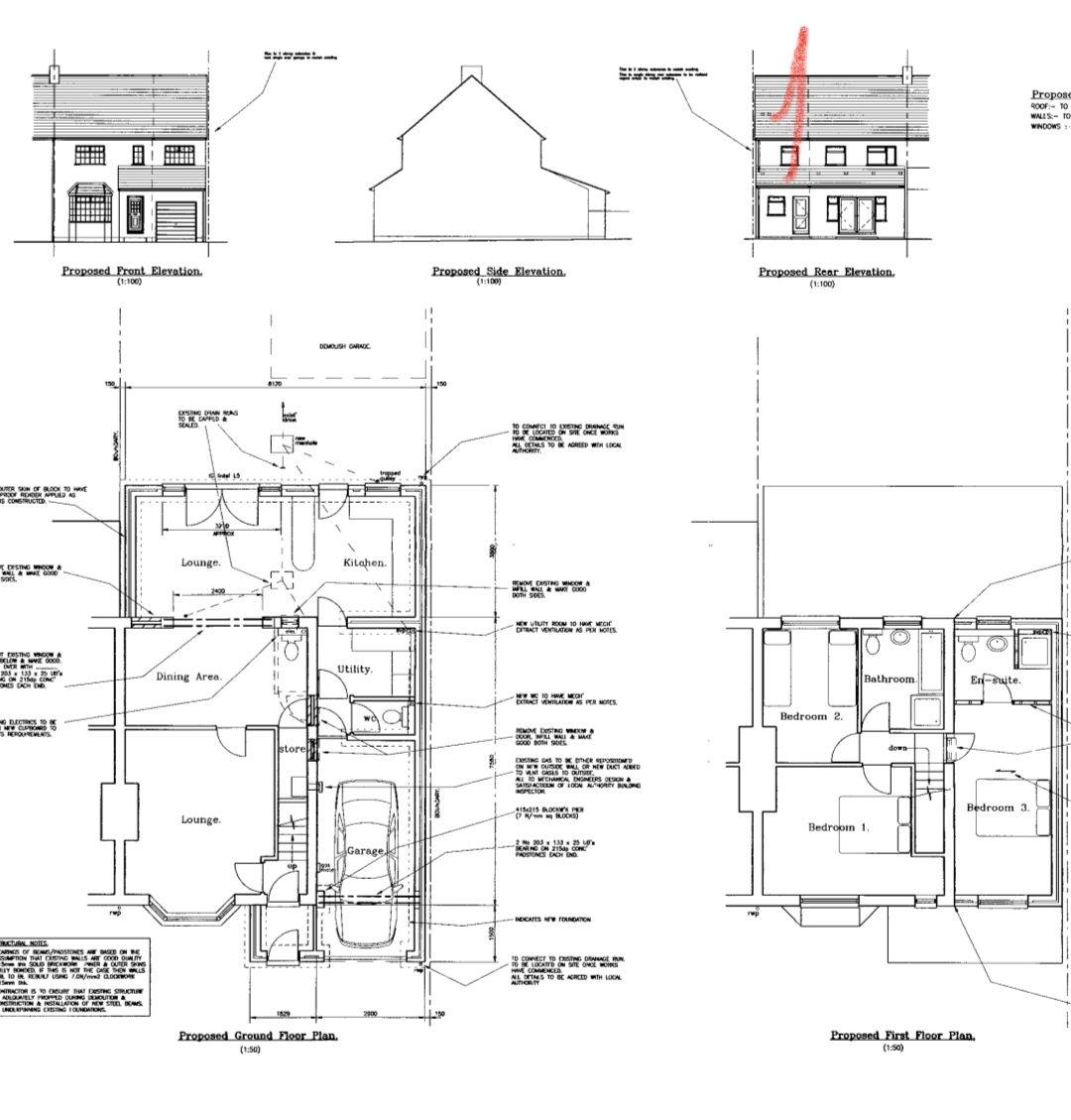
The ideal option is a 2 story side extension, plus wraparound extension at the back, and porch at the front with garage to the side. This exact extension is on another house of the same style several doors down. It was done quite a few years ago, but I've found the plans online. (see pictures).
Rear single wraparound would be 8.12m x 3.5m, side double story would be about 3m x 7.58m, front single porch/garage entrance would be about 4.7m x 1.5m.
Our internal plans would be a bit different though, we would just have a big kitchen diner with bifold doors at the back, and a downstairs shower room & utility room on the side/ the side part of the wraparound, maybe sacrificing some garage space.
Upstairs we would have 1 small office space and 1 family bathroom in the side extension, and turn our existing bathroom into a double bedroom.
Any ideas what sort of cost this would be all in? I know it's dependent on kitchen/bathroom choices too though, but just an idea of cost.
We plan on doing this in a few years time if possible, but we need to understand if what we want to do is cost effective over just moving house. At the moment we're holding off doing other work on the house because we're not sure how long we'll be here, and have no idea if the cost of something like this is plausible. If we can see it working and commit to staying, it means we can make it more enjoyable to live in whilst we save up for the extension.
An alternative cheaper idea is not to do a wraparound, but just a side double with porch/garage single, and the sing rear kitchen extension but not including the space at the side (so probably about 5m x 3.5m), leaving a square gap between the two extensions.
Only issue with both ideas is it will remove side access...
Any other ideas welcome! Thanks
I'm looking for an idea of extension costs. I've heard various amounts per sqm, but it's never clear to me what that actually includes.
We are based in the South West near Bristol.
We're considering turning our 2 bed into a 3 bed + office (or 4th bedroom/box room depending on how you look at it) with an open plan kitchen diner, a downstairs bathroom and a utility room.
The ideal option is a 2 story side extension, plus wraparound extension at the back, and porch at the front with garage to the side. This exact extension is on another house of the same style several doors down. It was done quite a few years ago, but I've found the plans online. (see pictures).
Rear single wraparound would be 8.12m x 3.5m, side double story would be about 3m x 7.58m, front single porch/garage entrance would be about 4.7m x 1.5m.
Our internal plans would be a bit different though, we would just have a big kitchen diner with bifold doors at the back, and a downstairs shower room & utility room on the side/ the side part of the wraparound, maybe sacrificing some garage space.
Upstairs we would have 1 small office space and 1 family bathroom in the side extension, and turn our existing bathroom into a double bedroom.
Any ideas what sort of cost this would be all in? I know it's dependent on kitchen/bathroom choices too though, but just an idea of cost.
We plan on doing this in a few years time if possible, but we need to understand if what we want to do is cost effective over just moving house. At the moment we're holding off doing other work on the house because we're not sure how long we'll be here, and have no idea if the cost of something like this is plausible. If we can see it working and commit to staying, it means we can make it more enjoyable to live in whilst we save up for the extension.
An alternative cheaper idea is not to do a wraparound, but just a side double with porch/garage single, and the sing rear kitchen extension but not including the space at the side (so probably about 5m x 3.5m), leaving a square gap between the two extensions.
Only issue with both ideas is it will remove side access...
Any other ideas welcome! Thanks
