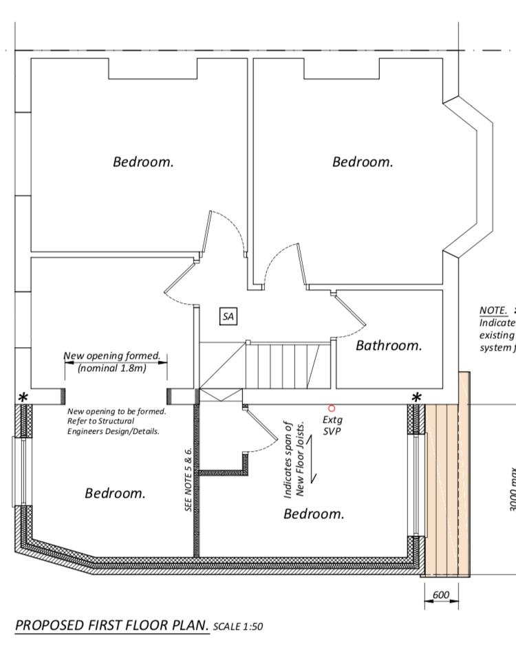
Have you got the room to pull the staircase forward to create a flat landing?
In my opinion it would make your extension feel more part of the house rather than an add on.
I'm no expert on building regs but if you have young children then having the layout like that all looks a bit dangerous to me.
(Sorry not the greatest picture so hopefully they are not confusing)
Please have a look the image mate - there is plenty of space in the existing landing area for the attic staircase to land. Pretty sure I would not need that in the new extension (left hand side).
