Any proprietary lintel of that span plus bearings will do. If you like, you can even check the manufacturer's guides which will state their loading capacity.
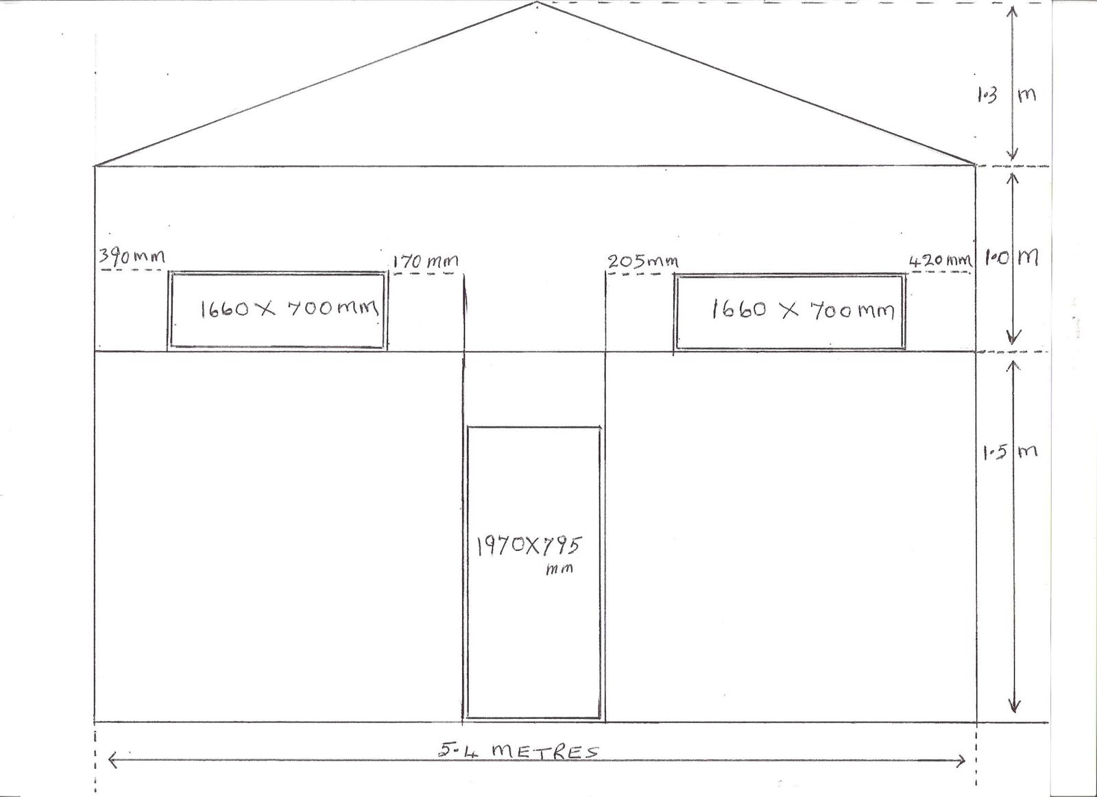
That looks like a normal loading situation with standard masonry above and adequate wall either side so it's just a standard lintel for the wall type (single, double, cavity etc). 1200mm for the door and 2100mm for the windows.
But .... your drawing looks way out of proportion going by the sizes. Normally the tops of the windows align with the top of the door. If so, there is a problem with the bearings between the windows and doors and three lintels wont fit. If not and the windows are higher, you are OK.
If you need to find a tradesperson to get your job done, please try our local search below,
or if you are doing it yourself you can find suppliers local to you.
Select the supplier or trade you require, enter your location to begin your search.
Please select a service and enter a location to continue...
Are you a trade or supplier? You can create your listing free at DIYnot Local