manifold under floor heating best position

Joined
25 Nov 2005
Messages
574
Reaction score
11
Country
United Kingdom
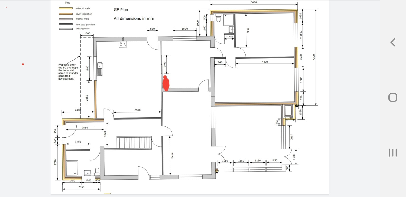
attached is the ground floor plan of my house. some of it suspended timber floor and some is concrete floor. we have decided to install under floor heating system. can someone please let me know the best position to fit the manifold. I am hoping to use one manifold.
 

Attachments

If you can get away with one manifold then it'll need to be central, such as where I've drawn a red line/splodge

I really think you'd be much better off with two though. If you're going to go to the expense of UFH, it's better to do it once and do it right
 

Attachments

  • Screenshot_20191219-060134_Samsung capture.jpg
    Screenshot_20191219-060134_Samsung capture.jpg
    80.3 KB · Views: 375
I agree two is much better. any recommendation of which type or make to use. I have been searching in eBay and there are so many variations. I am also looking for one with mat for fast and easy pipe installation.
 
eBay is not the place to buy UFH kit. NuHeat is good, as is Uponor, or Solflex. Your local plumbers merchant will be able to help if you don't fancy NuHeat, who will do everything online
 
For that size property only use 1 manifold. It’s way too small to use 2 manifolds.
Ideally in the centre of the house but you could put under the stairs. Any flow and return sections from the manifold to the specific room should have a corrugated sleeve slid over to stop heating along its route, and through each door way to stop problems with expansion.
I have used many companies but have found the Uponor and Maincor manifolds to be the most reliable and durable.
One of the cheapest places for the mlcp pipe is wundatrade. Buy it in 500m coils. Saves you a fortune as you have far less waste. Max loop length stay below 120m. Set pipework at 200mm centres unless you have higher heat loss then drop to 150mm centres.
 

If you need to find a tradesperson to get your job done, please try our local search below, or if you are doing it yourself you can find suppliers local to you.

Select the supplier or trade you require, enter your location to begin your search.


Are you a trade or supplier? You can create your listing free at DIYnot Local

 
Back
Top